| Nr. | Sadaļas nosaukums | Lpp. |
| 1. | ADMINISTRATĪVĀ ATBILDĪBA PAR CEĻU SATIKSMES REGULĒŠANAS NOTEIKUMU PĀRKĀPUMIEM | 3 |
| 2. | CEĻU SATIKSMES NEGADĪJUMS, KAS NOTICIS TRANSPORTLĪDZEKĻA VADĪTĀJA PĀRGURUMA REZULTĀTĀ | 4 |
| 3. | TRANSPORTLĪDZEKĻU IZVIETOJUMA ĪPATNĪBAS ĀRPUS APDZĪVOTĀM VIETĀM DIENNAKTS GAIŠAJĀ UN TUMŠAJĀ LAIKĀ | 6 |
| 4. | UZDEVUMS | 8 |
| 4.1 | Ceļu satiksmes negadījuma apraksts | 8 |
| 4.2 | Ekspertam uzdotie jautājumi | 8 |
| 4.3 | Jautājumi lai noteiktu dalībnieku atbildību | 8 |
| 4.4. | Dati aprēķināšanai un to apzīmējumi | 8 |
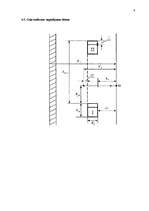
| 4.5. | Ceļu satiksmes negadījuma shēma | 9 |
| 4.6. | Aprēķins | 10 |
| 4.7. | Eksperta slēdziens | 12 |
| 5. | UZDEVUMS | 13 |
| 5.1. | Ceļu satiksmes negadījuma apraksts | 13 |
| 5.2. | Ekspertam uzdotie jautājumi | 13 |
| 5.3. | Dati aprēķināšanai un to apzīmējumi | 13 |
| 5.4. | Ceļu satiksmes negadījuma shēma | 14 |
| 5.5. | Aprēķins | 15 |
| 5.6. | Eksperta slēdziens | 17 |
| IZMANTOTĀ LITERATŪRA | 18 |
1. ADMINISTRATĪVĀ ATBILDĪBA PAR CEĻU SATIKSMES REGULĒŠANAS NOTEIKUMU PĀRKĀPUMIEM
Administratīvo atbildību par pieļautajiem pārkāpumiem nosaka Administratīvo pārkāpumu kodekss. Transportlīdzekļu vadītājiem administratīvā atbildība iestājas par rupjiem Ceļu satiksmes noteikumu pārkāpumiem (piemēram, atļautā braukšanas ātruma pārsniegšanu, apdzīšanu bīstamos apstākļos, braukšanu, neievērojot luksofora signālu, ceļa zīmju un apzīmējumu prasības, pārkāpjot manevrēšanas noteikumus u.tml.), par vides aizsardzības noteikumu pārkāpumiem (piemēram, piesārņojošo vielu izplūdes normatīvu pārsniegšanu u.tml.).
Atkarībā no pārkāpuma rakstura un smaguma pakāpes likumdošana paredz dažādus ietekmēšanas līdzekļus: brīdinājumu, naudas sodu, transportlīdzekļu vadīšanas tiesību atņemšanu uz noteiktu laiku, administratīvo arestu.
Atbildība par ceļu satiksmes regulēšanas noteikumu pārkāpšanu paredzēta Latvijas Administratīvo pārkāpumu kodeksa 149.5pantā “Ceļu satiksmes regulēšanas noteikumu pārkāpšana:
Par braukšanu, ja luksoforā deg aizliedzošais signāls, vai par nepakļaušanos satiksmes regulētāja signālam vai braukšanu virzienā, kas ir aizliegts ar satiksmes regulētāja signālu, uzliek naudas sodu velosipēda un mopēda vadītājam desmit latu apmērā, bet cita transportlīdzekļa vadītājam – no divdesmit līdz simts latiem.
Par to noteikumu pārkāpšanu, kuri paredz vietu, kur jāaptur transportlīdzeklis, ja braukt aizliedz satiksmes regulētāja vai luksofora signāli, izsaka brīdinājumu vai uzliek naudas sodu transportlīdzekļa vadītājam piecu latu apmērā.
Par nepakļaušanos tādas personas prasībai apturēt transportlīdzekli, kura ir pilnvarota pārbaudīt transportlīdzekļa vadītāja dokumentus, izsaka brīdinājumu vai uzliek naudas sodu transportlīdzekļa vadītājam desmit latu apmērā.
Par nepakļaušanos tādas personas atkārtotai vai vairākkārtējai prasībai apturēt transportlīdzekli (par bēgšanu), kura ir pilnvarota pārbaudīt transportlīdzekļa vadītāja dokumentus, uzliek naudas sodu velosipēda un mopēda vadītājam divdesmit latu apmērā, cita transportlīdzekļa vadītājam piemēro administratīvo arestu no desmit līdz piecpadsmit diennaktīm, uzliek naudas sodu piecsimt latu apmērā un atņem transportlīdzekļu vadīšanas tiesības uz trim gadiem.
…
1.administratīvā atbildība par ceļu satiksmes regulēšanas noteikumu pārkāpumiem; 2.CSN, kas noticis transportlēdzekļa vadītāja pārguruma rezultātā; 3.transportlīdzekļu izvietojuma īpatnības ārpus apdzīvotām vietām diennakts gaišajā un tumšajā laikā; izpildīti divi praktiskie uzdevumi (shēmas, formulas).
- Autovadīšanas tiesiskie aspekti, 2.variants
- Darba strīdu tiesiskie un praktiskie aspekti
- Tiesu leģitimitātes aspekti
-
Tu vari jebkuru darbu ātri pievienot savu vēlmju sarakstam. Forši!Rīgas Piespiedu darba uzraudzības dienesta darba organizācija
Referāts augstskolai32
-
Krimināllietas ierosināšana un tās nozīme kriminālprocesā
Referāts augstskolai18
-
Policijas tēla veidošanaspsiholoģiskie aspekti
Referāts augstskolai24
Novērtēts! -
Noziedzīgi nodarījumi datorinformācijas sfērā
Referāts augstskolai39
Novērtēts! -
Fiziskās un juridiskās personas
Referāts augstskolai22

