Referāts
Tehnoloģijas
Celtniecība un būvdarbi
Vienstāvu tirgus paviljona koka karkasa elementu projektē...-
Vienstāvu tirgus paviljona koka karkasa elementu projektēšana
2021. - 2025. g.
| Nr. | Sadaļas nosaukums | Lpp. |
| Darba uzdevums | 5 | |
| 1. | Materiālu un konstruktīvas shēmas parametru definēšana | 6 |
| 2. | Ēkas konstruktīvas shēmas formēšana | 7 |
| 2.1. | Ēkas karkasa gabarītizmēri | 7 |
| 2.1.1. | Ēkas šķērsrāmja ģeometrisko parametru noteikšana | 7 |
| 2.1.2. | Tērauda elementu izvēle | 7 |
| 2.1.3. | Augšjoslas elementu ģeometrisko parametru pieņemšana | 8 |
| 2.1.4. | Kopnes režģojuma elementu ģeometrisko parametru pieņemšana | 9 |
| 2.1.5. | Kolonnu ģeometrisko parametru pieņemšana | 9 |
| 2.2. | Karkasa elementu savstarpējais izvietojums | 10 |
| 2.2.1. | Kolonnu/šķērsrāmju soļa pieņemšana | 10 |
| 2.2.2. | Asu izvietošana | 11 |
| 2.3. | Karkasa elementu telpiskais nostiprinājums – saišu sistēma | 12 |
| 3. | Slodžu aprēķins | 14 |
| 3.1. | Koka saplākšņa pārseguma paneļa pašsvars | 14 |
| 3.2. | Kopnes pašsvars | 15 |
| 3.3. | Jumta konstrukcijas kopējais pašsvars | 16 |
| 3.4. | Lietderīgas slodzes | 16 |
| 3.5. | Sniega slodze | 16 |
| 3.5.1. | Nesanests sniegs | 17 |
| 3.5.2. | Sanests sniegs | 18 |
| 3.6. | Vēja slodze | 19 |
| 3.6.1. | Vēja slodze uz ēkas garensienām | 19 |
| 3.6.2. | Vēja slodze uz ēkas šķērssienām | 19 |
| 3.6.3. | Vēja slodze uz ēkas jumtu | 20 |
| 3.7. | Slodze uz pamatiem no ārsienas koka apšuvuma paneļiem | 26 |
| 4. | Jumta pārseguma paneļa aprēķins | 27 |
| 4.1. | Jumta pārseguma paneļa ģeometriskie parametri | 27 |
| 4.2. | Jumta pārseguma paneļa pārbaudes | 28 |
| 4.2.1. | Noturības pārbaude | 28 |
| 4.2.2. | Stiprības raksturotāji un parciālie drošības koeficienti | 29 |
| 4.2.3. | Statiskais aprēķins | 30 |
| 4.2.4. | Darbības apstākļu koeficienti un šķērsgriezuma raksturojošie parametri | 31 |
| 4.2.5. | Lieces spriegumu pārbaude plauktos | 33 |
| 4.2.6. | Lieces un skaldes pārbaudes ribās un šuvēs | 33 |
| 4.2.7. | Deformācijas no pastāvīgās slodzes | 34 |
| 5. | Secinājumi par darba sadaļu | 36 |
| 6. | Kopnes statiskais aprēķins | 37 |
| 7. | Kopnes elementu pārbaudes pēc ULS | 40 |
| 7.1. | Kopnes apakšjoslas elementi | 40 |
| 7.2. | Kopnes augšjoslas elementi | 41 |
| 7.3. | Kopnes režģojuma elementi | 43 |
| 8. | Kopnes elementu pārbaudes pēc SLS | 46 |
| 9. | Kolonnu aprēķins | 47 |
| 9.1. | Kolonnu pārbaudes pēc ULS | 47 |
| 10. | Secinājumi par darba sadaļu | 52 |
| 11. | Mezglu aprēķins | 53 |
| 11.1. | Kopnes un kolonnas sajūguma mezgls | 53 |
| 11.1.1. | Kolonnas gala pārbaude virsmas spiedē paralēli šķiedrām | 54 |
| 11.1.2. | Vainagsijas pārbaude spiedē perpendikulāri šķiedrām | 54 |
| 11.1.3. | Stiprinājuma elementa stiprības pārbaude | 55 |
| 11.1.4. | Skrūves stiprības pārbaude | 56 |
| 11.1.5. | Skrūvju izvietojums mezglā | 57 |
| 11.2. | Kolonnas balstījuma uz pamata mezgls | 59 |
| 11.2.1. | Kolonnas gala pārbaude virsmas spiedē | 59 |
| 11.2.2. | Vertikālās traversas aprēķins | 61 |
| 11.2.3. | Enkurskrūves stiprināšanas aprēķins | 63 |
| 11.3. | Mezglu gala skices | 68 |
| 12. | Secinājumi par darba sadaļu | 69 |
| 13. | Projekta grafiskā daļa | 70 |
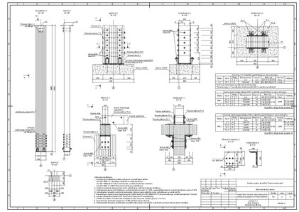
1. MATERIĀLU UN KONSTRUKTĪVAS SHĒMAS PARAMETRU
DEFINĒŠANA
Projektējamās ēkas konstruktīva shēma ar pieņemtiem apzīmējumiem:
1.1.att. Ēkas konstruktīva shēma ar parametru apzīmējumiem
Parametru atšifrējums:
L – būves platums starp asīm
hk – kopnes augstums laiduma vidū
hk1 – kopnes augstums pie balstiem
aau – attālums starp mezglu punktiem kopnes augšjoslā
aap – attālums starp mezglu punktiem kopnes apakšjoslā
Karkasa elementus paredzēts veidot no sekojošiem materiāliem:
līmētā koksne – stiprības klase Gl24h
masīvkoksne – stiprības klase C24
tērauds – stiprības klase S355
bultskrūves – stiprības klase 8,8
2. ĒKAS KONSTRUKTĪVAS SHĒMAS FORMĒŠANA
2.1. Ēkas karkasa gabarītizmēri
2.1.1. Ēkas šķērsrāmja ģeometrisko parametru noteikšana
Kopnes augstums laiduma vidū hk = (1/7 … 1/6)L = (1/7 … 1/6) × 24 = (3,43 … 4) → hk = 4 m.
Kopnes augstumu hk1 pie kopnes balstiem nosaka izejot no augšjoslas slīpuma, ko parasti pieņem
1:10 vai 5,71º → hk1 = 2,810 m.
Kopnes režģojumu projektē, ievērojot 3 pamatnosacījumus:
1. kopnes apakšjoslu pieņem realizēt no velmēta U profila UPE, jo stiepē koks darbojas kā
trausls materiāls:
apakšjoslas paneļu lokanums λy ≤ 400 → aap ≤ 400 × iy
2. 30º ≤ β ≤ 70º
, kur β – atgāžņu slīpuma leņķis
3. optimālais solis starp fahverka kolonnām (kolonnas montē pie kopnes augšjoslas
mezgliem) ir 3 m, atsevišķos gadījumos var pieņemt arī lielāko soli – līdz 4,5 m.…
Koka konstrukcijas - studiju darbs (kopne) studiju projekts ar grafisko daļu (rasējumiem)
Materiāls ir PDF formātā.
- Kokmateriālu grīdas
- Stratēģiskā vadīšana SIA “Ramiteh”
- Vienstāvu tirgus paviljona koka karkasa elementu projektēšana
-
Tu vari jebkuru darbu ātri pievienot savu vēlmju sarakstam. Forši!Kokmateriālu grīdas
Referāts augstskolai13
-
Koka terases projekts
Referāts augstskolai15
-
Darba tirgus būvniecības nozarē
Referāts augstskolai21
-
Koka un plastmasas konstrukcijas
Referāts augstskolai89
-
Koka pārseguma siju pastiprināšana
Referāts augstskolai12

