Pievienot darbus Atzīmētie0
Darbs ir veiksmīgi atzīmēts!

Atzīmētie darbi

Skatītie0

Skatītie darbi

Grozs0
Darbs ir sekmīgi pievienots grozam!

Grozs

Reģistrēties

interneta bibliotēka
Atlants.lv bibliotēka
Akcijas un īpašie piedāvājumi 2 Atvērt
3,99 € Ielikt grozā
Gribi lētāk?
Identifikators:894057
 
Vērtējums:
Publicēts: 15.06.2012.
Valoda: Latviešu
Līmenis: Augstskolas
Literatūras saraksts: 5 vienības
Atsauces: Ir
SatursAizvērt
Nr. Sadaļas nosaukums  Lpp.
1.  Izejas dati projektēšanai    5
2.  Novietnes apraksts    6
3.  Telpiskā plānojuma risinājuma apraksts    7
4.  Sadzīves telpu aprēķins    8
5.  Konstruktīvā risinājuma apraksts    9
5.1.  Ēkas pamati, to iebūves dziļums un gabarītu pamatojums    9
5.2.  Sienas    9
6.  Sanitāri tehnisko ietaišu (ārējo tīklu) apraksts    13
  Izmantotās literatūras saraksts    14
Darba fragmentsAizvērt

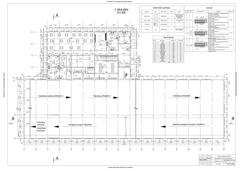
Nesošais karkass sastāv no kolonnām un horizontāliem elementiem – starpstāvu pārseguma rīģeļiem un jumta sijām. Kolonnas ir veidotas no dzelzsbetona. Rūpniecības un administratīvam korpusam ir stabveida pamati, uz kuriem balstās kolonnas.
Kolonnas stiprina pamatu glāzē.

Rūpniecības korpuss
Rūpniecības korpusā tiek izmantotas dzelzsbetona kolonnas. Vidējās kolonnas tiek novietotas tā, lai to apakšējās daļas ģeometriskās asis sakristu ar ēkas šķērsasīm un garenasīm.…

Autora komentārsAtvērt
Parādīt vairāk līdzīgos ...

Atlants

Izvēlies autorizēšanās veidu

E-pasts + parole

E-pasts + parole

Norādīta nepareiza e-pasta adrese vai parole!
Ienākt

Aizmirsi paroli?

Draugiem.pase
Facebook

Neesi reģistrējies?

Reģistrējies un saņem bez maksas!

Lai saņemtu bezmaksas darbus no Atlants.lv, ir nepieciešams reģistrēties. Tas ir vienkārši un aizņems vien dažas sekundes.

Ja Tu jau esi reģistrējies, vari vienkārši un varēsi saņemt bezmaksas darbus.

Atcelt Reģistrēties