Referāts
Māksla, kultūra un vēsture
Arhitektūra, dizains
Kursa projekts apkurē, ventilācijā un gaisa kondicionēšanā-
Kursa projekts apkurē, ventilācijā un gaisa kondicionēšanā
Referāts30 Arhitektūra, dizains, Celtniecība un būvdarbi, Fizika
| Nr. | Sadaļas nosaukums | Lpp. |
| 1. | Izejas dati apkures un ventilācijas projektēšanai | |
| 1.1. | Projektējamās ēkas īss raksturojums | |
| 1.2. | Apvidus klimatiskie apstākļi | |
| 1.3. | Telpu iekšējā gaisa parametri un gaisa apmaiņa | |
| 2. | Ārējo norobežojošo konstrukciju siltumtehniskais aprēķins | |
| 2.1. | Siltumizolācijas slāņa biezuma noteikšana ārsienai | |
| 2.2. | Norobežojošo konstrukciju atbilstība normatīvu prasībām | |
| 2.3. | Siltuma inerces raksturojuma noteikšana ārsienai | |
| 2.4. | Ārsienas iekšējās virsmas temperatūras pārbaude | |
| 2.5 | Siltuma transmisijas koeficienti konstrukcijām, caur kurām zūd siltums | |
| 3. | Siltumu zudumu aprēķins | |
| 3.1. | Siltumu zudumu aprēķinu tabula | |
| 4. | Ēkas īpatnējā siltuma raksturojuma noteikšana | |
| 5. | Sildķermeņu aprēķins | |
| 5.1. | Sildķermeņu uzstādīšanas, pievienošanas cauruļvadiem un siltuma atdeves regulēšanas paņēmiena apraksts | |
| 5.2. | Sildķermeņu aprēķina tabula | |
| 6. | Siltuma avota izvēle un iekārtas aprēķins | |
| 6.1. | Apkures katlu sildvirsmas aprēķins un katlu izvēle | |
| 6.2. | Dūmvadu un dūmeņu aprēķins | |
| 6.3. | Kurināmā patēriņa aprēķins | |
| 6.4. | Kurināmā noliktavas aprēķins | |
| 6.5. | Gaisa daudzums kurināmā sadedzināšanai un gaisa pievadkanāls | |
| 7. | Apkures sistēmas apraksts | |
| 8. | Izplešanās tvertnes aprēķins un konstrukcijas izstrāde | |
| 9. | Apkures sistēmas cauruļu hidrauliskais aprēķins | |
| 9.1. | Cauruļu hidrauliskā aprēķina tabula | |
| 10. | Ventilācijas sistēmas aprēķins | |
| 10.1. | Nepieciešamā gaisa apmaiņas aprēķina tabula un noplūdes restīšu izvēle | |
| 10.2. | Ventilācijas kanālu aprēķins |
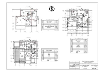
Dzīvojamās ēkas galvenā ieeja un garāžas vārti plānoti uz D, taču sētas durvis virzienā uz Z. No Malienas ielas līdz garāžas vārtiem ved bruģēts iebraucamais ceļš.
Ēkas tips – dzīvojamā māja (Artemida). Ēka projektēta trijos līmeņos – pagrabstāvs, pirmais stāvs un mansarda stāvs. Ēkai ir neapkurināms pagrabs, kurā izvietotas apkures iekārtas. Garāža, tā pat kā visas citas pirmā stāva telpas plānotas apkurināmas.
Ēka atrodas dzīvojamā masīvā, tāpēc vēja ietekme nav būtiska, bet siltuma zudumu aprēķinos tā tiek ņemta vērā. Ārējās norobežojošās konstrukcijas ir veidotas no keramzīta blokiem, siltināšanas elements ir stikla vate.
Kā kurināmais dzīvojamās mājas apsildē tiks izmantota sašķidrināta dabasgāze. Ēkā projektēta ūdens apkures sistēma – apkures sistēmā kā siltumnesējs tiks izmantots ūdens.
Siltuma sadale – apakšējā.
Projektējamās ēkas esošā starpsiena sastāv no FIBO 5 bloka mūra, kas abās pusēs apmests ar KNAUF GOLDBAND apmetumu, uz kura izlīmētas krāsojamās tapetes.
Ārdurvis, logi un balkona durvis [4]:
TROCAL PVC logu un durvju profilu sērija A5
No šīs profilu sērijas izgatavo logus, balkona durvis no logu profila, 104 mm iekšdurvis un balkona durvis, kā arī 130 mm ārdurvis.…
LLU LIF 3.kursa Būvniecības spec. kursa projekts priekšmetā "Apkure, ventilācija un gaisa kondicionēšana" Objekts: Artemida Ēkas stiklojums, [%]: 40 Iekštelpas grādi: +20 Ārsienu konstrukcija: keramzītbetons Siltumizolācija: stikla vate Pilsēta: Alūksne Kurināmais: sašķidrinātā dabas gāze Siltuma sadale: apakšējā Mezgls: jumta mezgls Saturs 1. Izejas dati apkures un ventilācijas projektēšanai 3 1.1. Projektējamās ēkas īss raksturojums 3 1.2. Apvidus klimatiskie apstākļi 7 1.3. Telpu iekšējā gaisa parametri un gaisa apmaiņa 7 2. Ārējo norobežojošo konstrukciju siltumtehniskais aprēķins 8 2.1. Siltumizolācijas slāņa biezuma noteikšana ārsienai 8 2.2. Norobežojošo konstrukciju atbilstība normatīvu prasībām 9 2.3. Siltuma inerces raksturojuma noteikšana ārsienai 9 2.4. Ārsienas iekšējās virsmas temperatūras pārbaude 11 2.5 Siltuma transmisijas koeficienti konstrukcijām, caur kurām zūd siltums 12 3. Siltumu zudumu aprēķins 13 3.1. Siltumu zudumu aprēķinu tabula 14 4. Ēkas īpatnējā siltuma raksturojuma noteikšana 18 5. Sildķermeņu aprēķins 19 5.1. Sildķermeņu uzstādīšanas, pievienošanas cauruļvadiem un siltuma atdeves regulēšanas paņēmiena apraksts 19 5.2. Sildķermeņu aprēķina tabula 20 6. Siltuma avota izvēle un iekārtas aprēķins 20 6.1. Apkures katlu sildvirsmas aprēķins un katlu izvēle 21 6.2. Dūmvadu un dūmeņu aprēķins 22 6.3. Kurināmā patēriņa aprēķins 22 6.4. Kurināmā noliktavas aprēķins 23 6.5. Gaisa daudzums kurināmā sadedzināšanai un gaisa pievadkanāls 23 7. Apkures sistēmas apraksts 25 8. Izplešanās tvertnes aprēķins un konstrukcijas izstrāde 26 9. Apkures sistēmas cauruļu hidrauliskais aprēķins 27 9.1. Cauruļu hidrauliskā aprēķina tabula 29 10. Ventilācijas sistēmas aprēķins 30 10.1. Nepieciešamā gaisa apmaiņas aprēķina tabula un noplūdes restīšu izvēle 30 10.2. Ventilācijas kanālu aprēķins 30 11. Izmantotās literatūras saraksts 32
- Būvniecības ekonomikas kursa projekts
-
Kursa projekts apkurē, ventilācijā un gaisa kondicionēšanā
Referāts30 Arhitektūra, dizains, Celtniecība un būvdarbi, Fizika
- Rūpniecības uzņēmuma siltuma utilizācijas un atkārtotas pielietošanas projekts
-
Tu vari jebkuru darbu ātri pievienot savu vēlmju sarakstam. Forši!Būvniecības ekonomikas kursa projekts
Referāts augstskolai24
-
Rūpniecības uzņēmuma siltuma utilizācijas un atkārtotas pielietošanas projekts
Referāts augstskolai50
Novērtēts! -
Kursa projekts lauksaimniecībasēkās - cūku ferma
Referāts augstskolai8
Novērtēts! -
Ēkas pamatu projekts
Referāts augstskolai24
Novērtēts! -
Rūpniecības ēkas darbu veikšanas projekts
Referāts augstskolai43

