Pievienot darbus Atzīmētie0
Darbs ir veiksmīgi atzīmēts!

Atzīmētie darbi

Skatītie0

Skatītie darbi

Grozs0
Darbs ir sekmīgi pievienots grozam!

Grozs

Reģistrēties

interneta bibliotēka
Atlants.lv bibliotēka
6,99 € Ielikt grozā
Gribi lētāk?
Identifikators:261206
 
Vērtējums:
Publicēts: 30.10.2023.
Valoda: Latviešu
Līmenis: Augstskolas
Literatūras saraksts: Nav
Atsauces: Nav
Laikposms: 2021. - 2025. g.
SatursAizvērt
Nr. Sadaļas nosaukums  Lpp.
  Titullapa    1
  Sastāvs    2
  Satura rādītājs    3
1.  Vispārīgā daļa    4
1.1.  Zemesgabala fotofiksācijas    5
1.2.  Vizualizācijas    6-7
1.3.  Skaidrojošais apraksts    8-11
2.  Arhitektūras daļa    12
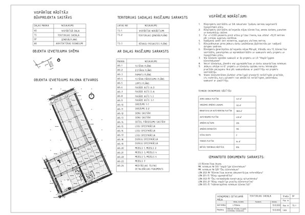
2.1.  Teritorijas sadaļa    13
2.1.1.  Vispārīgie rādītāji    14
2.1.2.  Ģenerālplāns    15
2.1.3.  Būvasu piesaistes plans    16
2.2.  Arhitektūras sadaļa    17
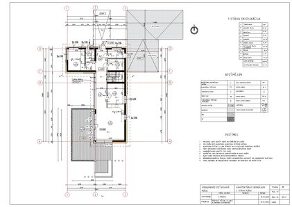
2.2.1.  1. Stāva plans    18
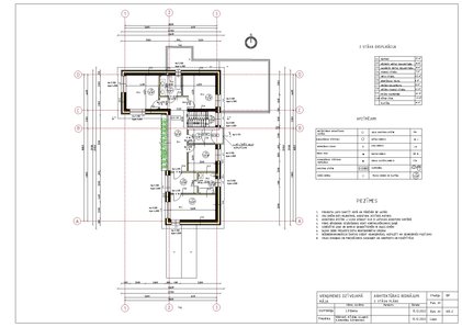
2.2.2.  2. Stāva plans    19
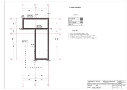
2.2.3.  Pamatu plans    20
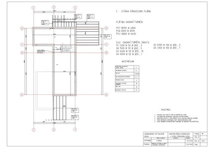
2.2.4.  1. Stāva pārsegumu plans    21
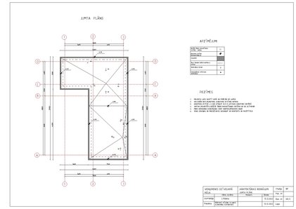
2.2.5.  Jumtu plans    22
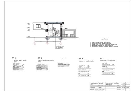
2.2.6.  Fasāde asīs A-D    23
2.2.7.  Fasāde asīs D-A    24
2.2.8.  Fasāde asīs 1-3    25
2.2.9.  Fasāde asīs 3-1    26
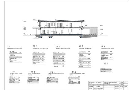
2.2.10.  Griezums 1-1    27
2.2.11.  Griezums 2-2    28
2.2.12.  Sienu sastāvi    29-30
2.2.13.  Grīdu, pārsegumu sastāvi    31
2.2.14.  Logu specifikācija    32-34
2.2.15.  Durvju specifikācija    35-36
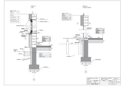
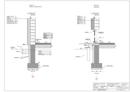
2.2.16.  Mezgls 1, Mezgls 2    37
2.2.17.  Mezgls 3, Mezgls 4    38
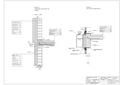
2.2.18.  Mezgls 5, Mezgls 6    39
2.2.19.  Mezgls 7    40
Darba fragmentsAizvērt

SKAIDROJOŠAIS APRAKSTS
Vispārējās prasības
Būvprojekts izstrādāts pamatojoties uz pasūtītāja iesniegto projektēšanas uzdevumu, kā arī
atbilstoši Latvijas Republikas būvniecības normatīviem un standartiem.
Projekta mērķis ir izbūvēt vienģimenes dzīvojamās mājas jaunbūvi privātpersonas zemes
gabalā, kas veiktu dzīvojamās ēkas fukciju, kas atbilstoši MK noteikumiem Nr. 326 klasificējams
kā “viena dzīvokļa mājas” (kods 1110)
Zemes gabals atrodas Mārupē, tā maksimālais apbūves blīvums ir 30%, maksimālais
apbūves augstums – 3 stāvi.
Teritorijas labiekārtojums
Teritorijas labiekārtojumu paredzēts veidot pieskaņotu ēkas arhitektūras risinājumiem.
Iebraukšana zemes gabalā paredzēta no Vālodžu ielas, pa zemes gabala Ziemeļu pusi. Celiņus
paredzēts veidot ar akmens šķembām. Auto novietne paredzēta zem nojumes ar bruģētu segumu. …

Autora komentārsAtvērt
Redakcijas piezīmeAtvērt
Parādīt vairāk līdzīgos ...

Atlants

Izvēlies autorizēšanās veidu

E-pasts + parole

E-pasts + parole

Norādīta nepareiza e-pasta adrese vai parole!
Ienākt

Aizmirsi paroli?

Draugiem.pase
Facebook

Neesi reģistrējies?

Reģistrējies un saņem bez maksas!

Lai saņemtu bezmaksas darbus no Atlants.lv, ir nepieciešams reģistrēties. Tas ir vienkārši un aizņems vien dažas sekundes.

Ja Tu jau esi reģistrējies, vari vienkārši un varēsi saņemt bezmaksas darbus.

Atcelt Reģistrēties