Konspekts
Tehnoloģijas
Celtniecība un būvdarbi
Ēkas starpstāvu pārseguma nesošo tērauda konstrukcijas pr...-
Ēkas starpstāvu pārseguma nesošo tērauda konstrukcijas projekts
| Nr. | Sadaļas nosaukums | Lpp. |
| 1. | Paskaidrojuma raksts | 4 |
| 2. | Studiju darba uzdevums | 5 |
| 3. | Klājsiju projektēšana | 7 |
| 3.1. | Uz klājsijām iedarbojošos slodžu noteikšana | 7 |
| 3.2. | Klājsiju šķērsgriezuma noteikšana un pārbaudes | 8 |
| 3.2.1. | Lieces momenta un šķērsspēka lielākā aprēķina vērtība | 8 |
| 3.2.2. | Tērauda stiprības klases izvēle | 8 |
| 2.2.3. | Nosaka sijas šķērsgriezuma minimālo nepieciešamo elastīgo pretestības momentu | 8 |
| 3.2.4. | Pieņem dubult-T profīlu | 9 |
| 3.2.5. | Nosaka izvēlētā šķērsgriezuma klasi | 10 |
| 3.2.6. | Stiprības pārbaudes | 10 |
| 3.2.7. | Sijas sieniņas vietējā noturība jeb lokālā izkļaušanās | 11 |
| 3.2.8. | Izvēlētā sijas šķērsgriezuma stinguma pārbaude | 12 |
| 4. | Galvenās sijas projektēšana | 13 |
| 4.1. | Galvenās sijas aprēķina shēma | 13 |
| 4.2. | Tērauda stiprības klases izvēle un tērauda pretestību noteikšana | 15 |
| 4.3. | Sijas šķērsgriezuma komponēšana | 15 |
| 4.3.1. | Šķērsgriezuma mazākais augstums | 15 |
| 4.3.2. | Šķērsgriezuma optimālais augstums | 15 |
| 4.3.3. | Sijas sieniņas galīga biezuma noteikšana | 16 |
| 4.3.4. | Plauktiņu izmēri | 16 |
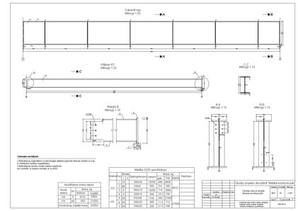
1. Paskaidrojuma raksts
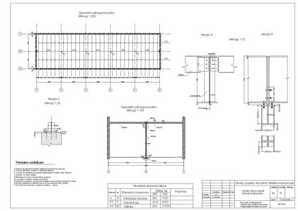
Projektā paredzēta tā saucamā normālā tipa siju sistēma, kas sastāv no saliktām metinātām galvenajām sijām un velmētām klājsijām. Pēc statiskās shēmas izmantotas statiski noteicamas (vienlaiduma divbalstu) sijas.
Kā norādīts projektēšanas uzdevumā, galveno siju balstīšanai pa ēkas garenvirziena vidusasi paredzētas tērauda pilnsienas kolonnas.
Lai maksimāli samazinātu nepieciešamo materiāla (tērauda) patēriņu un projektu padarītu pēc iespējas ekonomisku, klājsijas izvietoju pēc iespējas reti- ar soli, kas uzdots kā maksimālais (smax = 1,8 m). Pie šāda klājsiju izvietojuma būs nepieciešami lielāki velmētie profili, kas sadārdzina projektu, bet tā kā montāžas elementu skaits ir maksimāli mazākais, tad tas ļauj samazināt montāžas izmaksas.
Klājsiju izvietojuma solis pieņemts vienāds visos laidumos, lai maksimāli unificētu siju sistēmas elementus.
Uz projektējamā pārseguma paredzēts izvietot noliktavas telpas. Ēkas jumta pārsegumu paredzēts balstīt uz ārsienām.
Zem pārseguma atrodošās telpas platums B = 14m, garums = 51m, augstums = 6m.
Starpstāvu pārsegumu siju sistēmu paredzēts balstīt uz ēkas ārsienām un uz 4 pilnsienas kolonnām, kuras izvietotas pa ēkas garenvirziena vidusasi 10,2m attālumā viena no otras un no ārsienām.
Starpstāvu pārsegumam pieliktās lietderīgās slodzes raksturīgā (normatīvā) vērtība pk=8,1 kN/m2. Tērauda konstrukciju rūpnīcas savienojumi paredzēti metināti, montāžas savienojumi – gan metināti, gan realizēti ar skrūvēm.
Nesošās kolonnas ir centriski spiestas un balstītas uz balstplātnēm, kuras ar enkurskrūvēm ir saistītas ar pamatni. Kolonnas apakšējais gals ir frēzēts, pie tam kolonnas stieņu (zaru) frēzētajiem galiem nodrošināta cieša saskare ar balstplātni.…
RĪGAS TEHNISKĀS UNIVERSITĀTES STUDIJU PROJEKTS disciplīnā’’METĀLA KONSTRUKCIJAS” pie pasniedzēja R. Ozoliņa. --------------------- “Ēkas starpstāvu pārseguma nesošo tērauda konstrukcijas projekts” Variants Nr. 23 Studiju darbs + grafiskā daļa (MK un MKD stadijas). --------------------- Darbs pildīts pēc: "METODISKI NORĀDĪJUMI STUDIJU PROJEKTA DISCIPLĪNĀ „METĀLA KONSTRUKCIJAS” (ēkas starpstāvu pārseguma nesošo tērauda konstrukciju projekts)" UN TĒRAUDA KONSTRUKCIJU PROJEKTĒŠANA SASKAŅĀ AR EN 1993 --------------------- 1. Paskaidrojuma raksts Projektā paredzēta tā saucamā normālā tipa siju sistēma, kas sastāv no saliktām metinātām galvenajām sijām un velmētām klājsijām. Pēc statiskās shēmas izmantotas statiski noteicamas (vienlaiduma divbalstu) sijas. Kā norādīts projektēšanas uzdevumā, galveno siju balstīšanai pa ēkas garenvirziena vidusasi paredzētas tērauda pilnsienas kolonnas. Lai maksimāli samazinātu nepieciešamo materiāla (tērauda) patēriņu un projektu padarītu pēc iespējas ekonomisku, klājsijas izvietoju pēc iespējas reti- ar soli, kas uzdots kā maksimālais (smax = 1,8 m). Pie šāda klājsiju izvietojuma būs nepieciešami lielāki velmētie profili, kas sadārdzina projektu, bet tā kā montāžas elementu skaits ir maksimāli mazākais, tad tas ļauj samazināt montāžas izmaksas. Klājsiju izvietojuma solis pieņemts vienāds visos laidumos, lai maksimāli unificētu siju sistēmas elementus. Uz projektējamā pārseguma paredzēts izvietot noliktavas telpas. Ēkas jumta pārsegumu paredzēts balstīt uz ārsienām. Zem pārseguma atrodošās telpas platums B = 14m, garums = 51m, augstums = 6m. Starpstāvu pārsegumu siju sistēmu paredzēts balstīt uz ēkas ārsienām un uz 4 pilnsienas kolonnām, kuras izvietotas pa ēkas garenvirziena vidusasi 10,2m attālumā viena no otras un no ārsienām.
PDF formāts.
- Ēkas starpstāvu pārseguma nesošo tērauda konstrukcijas projekts
- Iznomājamās tirdzniecības ēkas celtniecība
- Koka ēkas fasādes un jumta remontdarbu tāme
-
Tu vari jebkuru darbu ātri pievienot savu vēlmju sarakstam. Forši!Koka ēkas fasādes un jumta remontdarbu tāme
Konspekts augstskolai1
-
Priekšmeta "Būvmateriāli" programma ar atbildēm. Pirmā daļa
Konspekts augstskolai115
-
Priekšmeta "Būvmateriāli" programma ar atbildēm. Otrā daļa
Konspekts augstskolai111
-
Siltumapgāde. Atbildes uz eksāmena jautājumiem
Konspekts augstskolai14
-
Koka sijas izpēte
Konspekts augstskolai10

