Pievienot darbus Atzīmētie0
Darbs ir veiksmīgi atzīmēts!

Atzīmētie darbi

Skatītie0

Skatītie darbi

Grozs0
Darbs ir sekmīgi pievienots grozam!

Grozs

Reģistrēties

interneta bibliotēka
Atlants.lv bibliotēka
Akcijas un īpašie piedāvājumi 2 Atvērt
9,99 € Ielikt grozā
Gribi lētāk?
Identifikators:726502
 
Vērtējums:
Publicēts: 22.02.2007.
Valoda: Latviešu
Līmenis: Augstskolas
Literatūras saraksts: 6 vienības
Atsauces: Ir
SatursAizvērt
Nr. Sadaļas nosaukums  Lpp.
1.  ADMINISTRATĪVĀ ATBILDĪBA PAR PRIEKŠROCĪBAS CEĻA ZĪMJU UN AIZLIEGUMA CEĻA ZĪMJU PĀRKĀPUMIEM    3
2.  CEĻU SATIKSMES NOTEIKUMU PRASĪBAS TRANSPORTLĪDZEKĻA APRĪKOJUMAM UN ĀRĒJĀS APGAISMES IERĪCĒM, KAS NODROŠINA DROŠU SATIKSMI (KUSTĪBU)    4
3.  DROŠAS APDZĪŠANAS NODROŠINĀŠANA    9
4.  UZDEVUMS    11
4.1  CSN apraksts    11
4.2  Ekspertam uzdotie jautājumi    11
4.3  Jautājumi lai noteiktu dalībnieku atbildību    11
4.4.  Dati aprēķināšanai un to apzīmējumi    11
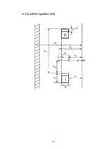
4.5.  Ceļu satiksmes negadījuma shēma    12
4.6.  Aprēķins    13
4.7.  Eksperta slēdziens    15
5.  UZDEVUMS    16
5.1.  Ceļu satiksmes negadījuma apraksts    16
5.2.  Ekspertam uzdotie jautājumi    16
5.3.  Dati aprēķināšanai un to apzīmējumi    16
5.4.  Ceļu satiksmes negadījuma shēma    17
5.5.  Aprēķins    18
5.6.  Eksperta slēdziens    20
  IZMANTOTĀ LITERATŪRA    21
Darba fragmentsAizvērt

1. ADMINISTRATĪVĀ ATBILDĪBA PAR PRIEKŠROCĪBAS CEĻA ZĪMJU UN AIZLIEGUMA CEĻA ZĪMJU PĀRKĀPUMIEM

Administratīvo atbildību par pieļautajiem pārkāpumiem nosaka Latvijas administratīvo pārkāpumu kodekss (spēkā esošs no 1985.gada 1.jūlija, ar grozījumiem, kas izsludināti līdz 2006.gada 7.jūlijam). Atbildība par pārkāpumiem ceļu satiksmē paredzēta Desmitajā “a” nodaļā.
149.27 pants. Priekšrocības ceļa zīmju prasību pārkāpšana
Par tās prasības neizpildīšanu, kura noteikta ar 206., 207. vai 208.ceļa zīmi (ceļa nedošana transportlīdzekļu vadītājiem, kuriem ir priekšroka), uzliek naudas sodu velosipēda un mopēda vadītājam piecu latu apmērā, bet cita transportlīdzekļa vadītājam – no desmit līdz piecdesmit latiem.
Par tās prasības neizpildīšanu, kura noteikta ar 207.ceļa zīmi (transportlīdzekļa neapturēšana), uzliek naudas sodu velosipēda un mopēda vadītājam piecu latu apmērā, bet cita transportlīdzekļa vadītājam – divdesmit latu apmērā.
Par tās prasības neizpildīšanu, kura noteikta ar 207.ceļa zīmi (transportlīdzekļa neapturēšana tieši noteiktajā vietā), izsaka brīdinājumu vai uzliek naudas sodu transportlīdzekļa vadītājam piecu latu apmērā.
149.28 pants. Aizlieguma ceļa zīmju prasību pārkāpšana
Par tās prasības neizpildīšanu, kura noteikta ar 302., 303., 304., 306., 307., 308., 310., 311., 312., 313., 314., 315., 316., 317., 318., 331., 332., 333. vai 334.ceļa zīmi, uzliek naudas sodu velosipēda un mopēda vadītājam piecu latu apmērā, bet cita transportlīdzekļa vadītājam – divdesmit latu apmērā.
Par tās prasības neizpildīšanu, kura noteikta ar 301., 319. vai 321.ceļa zīmi, uzliek naudas sodu velosipēda un mopēda vadītājam piecu latu apmērā, bet cita transportlīdzekļa vadītājam – četrdesmit latu apmērā.
Par tās prasības neizpildīšanu, kura noteikta ar 305. vai 309. ceļa zīmi, izsaka brīdinājumu vai uzliek naudas sodu velosipēda un mopēda vadītājam vai gājējam piecu latu apmērā.…

Autora komentārsAtvērt
Darbu komplekts:
IZDEVĪGI pirkt komplektā ietaupīsi −13,27 €
Materiālu komplekts Nr. 1183436
Parādīt vairāk līdzīgos ...

Atlants

Izvēlies autorizēšanās veidu

E-pasts + parole

E-pasts + parole

Norādīta nepareiza e-pasta adrese vai parole!
Ienākt

Aizmirsi paroli?

Draugiem.pase
Facebook

Neesi reģistrējies?

Reģistrējies un saņem bez maksas!

Lai saņemtu bezmaksas darbus no Atlants.lv, ir nepieciešams reģistrēties. Tas ir vienkārši un aizņems vien dažas sekundes.

Ja Tu jau esi reģistrējies, vari vienkārši un varēsi saņemt bezmaksas darbus.

Atcelt Reģistrēties