Diplomdarbs
Tehnoloģijas
Auto, moto u.c. tehnika
Saplākšņa padeves līnija defektu aizsmērēšanai/tepēšanai-
Saplākšņa padeves līnija defektu aizsmērēšanai/tepēšanai
TOP 500Novērtēts!
2021. - 2025. g.
| Nr. | Sadaļas nosaukums | Lpp. |
| Anotācija | 5 | |
| Darbā lietoto saīsinājumu un simbolu skaidrojums | 10 | |
| Ievads | 11 | |
| 1 | Patreizējā situācija rūpnīcā “Lignums” | 12 |
| 2 | Saplākšņa ražošanas iekārtu tirgus analīze | 16 |
| 2.1 | Saplākšņa lokšņu tepēšanas līnija R5 | 16 |
| 2.2 | Saplākšņa lokšņu tepēšanas līnija R7 | 17 |
| 2.3 | “Argos” paneļu labošanas līnija | 19 |
| 2.4 | “Fill” paneļu labošanas līnija | 20 |
| 3 | Tehniskais uzdevums mehanizētas saplākšņu tepēšanas līnijas izveidei | 21 |
| 3.1 | Projekta sākotnējie izejas dati | 21 |
| 3.2 | Prasības izgatavojamai līnijai | 21 |
| 3.3 | Līnijas vadība (automātiskā un rokas režīmā): | 22 |
| 3.4 | Citi saistošie un veicamie pasākumi: | 23 |
| 4 | Rokas tepēšanas līnijas darbības principu apraksts | 24 |
| 5 | Iekārtas un tās elementu shēmas izvēles pamatojums un analīze | 26 |
| 5.1 | Iekārtas kopējās shēmas izvēle | 26 |
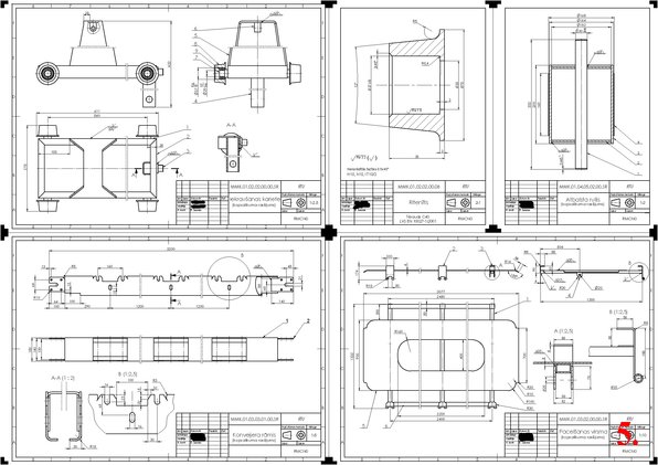
| 5.2 | Lokšņu un paku pārvietošanas konveijeru izvēle | 27 |
| 5.2.1 | Lentes konveijeri | 27 |
| 5.2.2 | Ķēdes konveijeri | 28 |
| 5.2.3 | Veltņu/ruļļu konveijeri | 29 |
| 5.2.4 | Konveijeru izvēle | 29 |
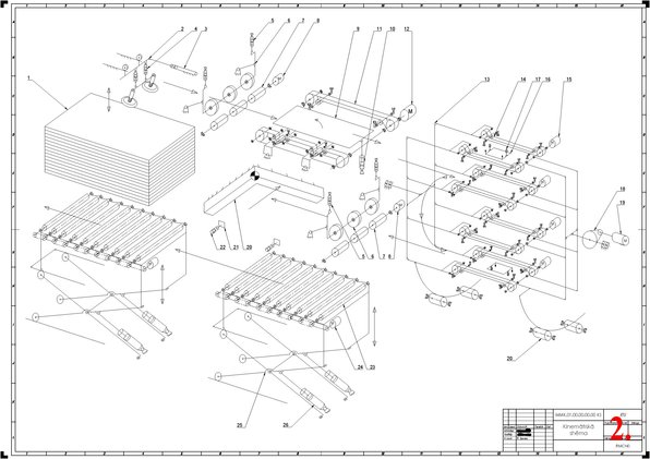
| 5.3 | Tepēšanas darbavietas kinemātika | 30 |
| 5.3.1 | Secinājumi un shēmas izvēlē | 33 |
| 5.4 | Lokšņu apgriezēja kinemātika | 34 |
| 5.4.1 | Secinājumi un shēmas izvēle | 38 |
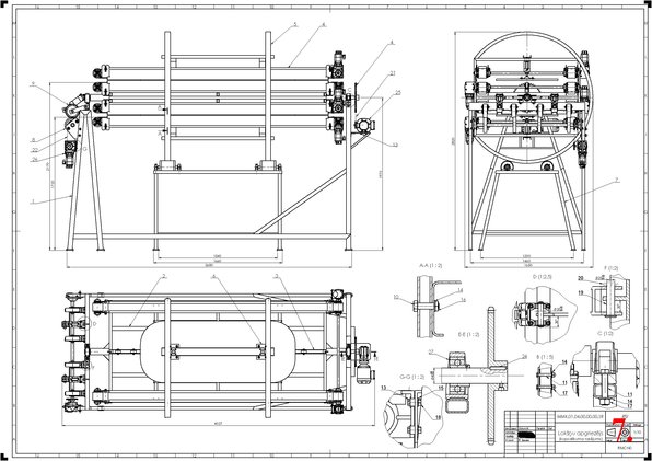
| 6 | Izvēlētā risinājuma darbības apraksts | 39 |
| 6.1 | Lokšņu padeves mehānisms | 39 |
| 6.2 | Tepēšanas darbavieta ar transportieri | 40 |
| 6.3 | Saplākšņa apgriešanas mehānisms | 40 |
| 6.4 | Saplākšņa lokšņu uzkrāšana pēc tepēšanas | 41 |
| 6.5 | Drošības nožogojumi, platformas un kāpnes | 41 |
| 7 | Ergonomiska darba vieta | 42 |
| 8 | Aprēķini | 43 |
| 8.1 | Tepēšanas vieta | 43 |
| 8.1.1 | Lokšņu lentu transportiera aprēķini[14] | 43 |
| 8.1.2 | Starp-padeves ruļļu un transportiera ātruma salāgošana | 45 |
| 8.1.3 | Loksnes pacelšanas mezgla aprēķini | 46 |
| 8.2 | Lokšņu apgriezējs | 47 |
| 8.2.1 | Apgriezēja darbības parametri | 47 |
| 8.2.2 | Apgriešanas piedziņas aprēķini | 48 |
| 8.2.3 | Ierievju skaits un izmēri lielā apgriešanas asij | 50 |
| 8.2.4 | Aprēķini apgriešanas ass gultņiem | 51 |
| 8.3 | Lokšņu uzkrāšanas mehānisms | 52 |
| 9 | Izstrādātās iekārtas kapacitāte un iekļaušana esošajā sistēmā | 53 |
| 10 | Ekonomiskā daļa | 54 |
| 10.1 | Iekārtas izgatavošana | 54 |
| 11 | Darba aizsardzība un apkārtējās vides aizsardzība | 58 |
| 11.1 | Darba aizsardzība | 58 |
| 11.2 | Apkārtējās vides aizsardzība | 59 |
| Secinājumi | 61 | |
| Literatūras saraksts | 62 | |
| Pielikums | 64 |
Tepēšanas procesam pamatā tiek laistas cauri loksnes, kuras pēc slīpēšanas tiek laminētas ar kādu no fenola filmām (pārklājumiem). Gala produktu sauc LAMWG vai LAMBB. Tāpat tiek tepētas WGE (WG šķira, bet E burts nozīmē tepēšanu). Baltais saplāksnis (ne tiek laminēts), pārsvarā tiek tepēts pēc slīpēšanas. Bet ir šķiras FIbo,Alloc, kuras jātepē pirms slīpēšanas, jo uz slīpmašīnas tiek šķirots uzreiz atbilstībai šķirai.
Rūpnīcā ir 3 laminēšanas preses, kuras attiecīgi vidēji maiņā apstrādā 1000, 700, 1000 tepētas loksnes. Nepieciešamajā tepēto lokšņu skaitā jāiekļauj arī ap 1300 lokšņu baltais saplāksnis un dažādi brāķi, kuri tiek nošķiroti. Tātad kopumā patreiz vajadzīgs maiņā notepēt ap 5000 loksnēm, bet nākotnē jau šis skaitlis varētu pieaugt par 50%, ja skatās uz tirgus tendencēm. Patreiz šādi apjomi netiek sasniegti un maiņā vidēji tiek notepētas tikai ap 3000 lokšņu.…
Bakalaura darba tēma saņemta no AS “Latvijas finieris”. Darbā tiek apskatīti iespējamie varianti tepēšanas efektivitātes uzlabošanai un izstrādāts iekārtu kopums saplākšņa padeves nodrošināšanai darba veikšanai. Darbs sastāv no grafiskās daļas – 8 A1 lapām un apraksta daļas. SAPLĀKŠŅA PADEVE, IEKĀRTA, LOKŠŅU APGRIEZĒJS, VIRSMAS APSTRĀDE, SAPLĀSNIS, TRANSPORTIERI, TEPĒŠANA
- Dzesēšanas sistēma
-
Prakses atskaite
Prakses atskaite85 Auto, moto u.c. tehnika, Transports, sakari
- Saplākšņa padeves līnija defektu aizsmērēšanai/tepēšanai
-
Tu vari jebkuru darbu ātri pievienot savu vēlmju sarakstam. Forši!Ar spriegumu un frekvenci regulējamo asinhrono dzinēju enerģētiskie raksturojumi
Diplomdarbs augstskolai45
-
Latvijas - Vācijas kopuzņēmuma attīstības stratēģija
Diplomdarbs augstskolai61
-
Ātrgaitas rotoru balansēšana un dinamisko reakciju analīze
Diplomdarbs augstskolai39
-
Autosvārstību modeļu pielietojums biomehānisku spēku sistēmu analīzē
Diplomdarbs augstskolai73
-
Vieglās daudzfunkcionālās lidmašīnas modernizācija ar kompozītmateriālu pielietošanu un tās tehniskā apkope
Diplomdarbs augstskolai60

