Diplomdarbs
Tehnoloģijas
Celtniecība un būvdarbi
Inovatīvo siltumizolācijas materiālu analīze, izmantojot ...-
Inovatīvo siltumizolācijas materiālu analīze, izmantojot pūšamo iestrādes metodi. Liellopu kūts ēkas projekts
| Nr. | Sadaļas nosaukums | Lpp. |
| IEVADS | 11 | |
| 2.1. | Siltumtehniskās īpašības | 14 |
| 2.2. | Ugunsdrošība | 21 |
| 2.3. | Skaņas izolācija | 24 |
| 2.4. | Ilgmūžība un ekoloģiskās īpašības | 27 |
| 2.5. | Iestrādes tehnika un izmaksas | 33 |
| 3.1. | Betona grīda uz grunts | 46 |
| 3.2. | Koka karkasa ārsiena | 48 |
| 3.5. | Bēniņu pārsegums | 53 |
| SECINĀJUMI | 58 | |
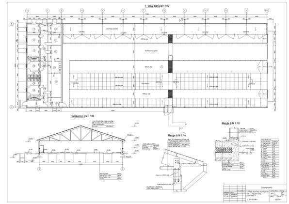
| 1.1. | Objekta raksturojums | 60 |
| 1.2. | Apbūves vietas raksturojums | 60 |
| 1.3. | Arhitektūras apraksts | 60 |
| 1.4. | Konstrukciju apraksts | 61 |
| 1.5. | Vides pieejamība | 61 |
| 2.1.1. | Ārsiena | 62 |
| 2.1.2. | Pārseguma konstrukcija | 63 |
| 2.1.3. | Grīda uz grunts | 64 |
| 2.2. | Ugunsdrošība | 65 |
| 4. | VARIANTU SALĪDZINĀJUMS | 66 |
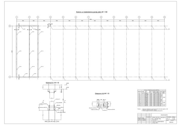
| 4.1. | Režģotas kolonnas aprēķins | 66 |
| 4.2. | Dubult T profila kolonnas aprēķins | 70 |
| 4.3. | Kolonnu salīdzinājums | 72 |
| 5.1. | Slodžu aprēķins | 73 |
| 5.1.1. | Sniega slodze | 73 |
| 5.1.2. | Vēja slodze | 74 |
| 5.1.3. | Pašsvara slodze | 82 |
| 5.1.4. | Slodžu kombinācijas | 83 |
| 5.2. | Kopnes projektēšana | 86 |
| 5.2.1. | Augšējās joslas stieņu aprēķins | 87 |
| 5.2.2. | Apakšējās joslas stieņu aprēķins | 90 |
| 5.2.3. | Kopnes statņu aprēķins | 91 |
| 5.2.4. | Kopnes atgāžņu aprēķins | 92 |
| 5.3. | Kolonnas aprēķins | 97 |
| 5.3.1. | Piepūļu noteikšana | 97 |
| 5.3.2. | Kolonnas dimensionēšana | 97 |
| 5.4. | Kopnes mezglu projektēšana | 99 |
| 5.4.1. | Kopnes un kolonnas mezgls | 99 |
| 5.4.3. | Kolonnas un pamata mezgls | 104 |
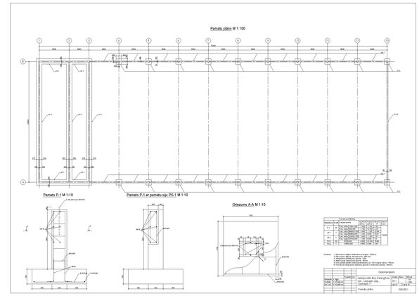
| 5.5. | Pamatu aprēķins | 109 |
| 5.5.1. | Pamatu iebūves dziļums | 109 |
| 5.5.2. | Slodžu notekšana | 110 |
| 5.5.3. | Pamata nestspējas aprēķins | 110 |
| 5.5.4. | Pamata sēšanās aprēķins | 112 |
| 5.6. | Pamatu konstrukcijas aprēķins | 115 |
| 5.6.1. | Betona aizsargslāņā noteikšana | 115 |
| 5.6.2. | Grunts pretspiediens | 116 |
| 5.6.3. | Pamatu pēdas augstuma noteikšana | 116 |
| 5.6.4. | Pamatu pēdas šķērsspēka pārbaude | 117 |
| 5.6.5. | Pamatu pēdas stiegrojuma aprēķins | 117 |
| 5.6.6. | Plaisu regulēšana | 118 |
| 6. | BŪVDARBU PROCESA APRAKSTS | 120 |
| 6.1. | Sagatavošanas darbi (1.04.-17.04.) | 120 |
| 6.2. | Zemes darbi (18.04.-24.04.) | 120 |
| 6.3. | Pamatu betonēšanas darbi (23.04. -21.05.) | 121 |
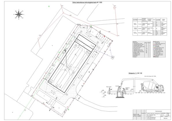
| 6.4. | Grīdu betonēšanas darbi (21.05.-17.07.) | 121 |
| 6.5. | Montāžas darbi (17.07.-29.08.) | 122 |
| 6.6. | Namdaru darbi (29.08.-6.09.) | 124 |
| 6.7. | Apdares darbi (6.09.-23.09.) | 124 |
| 6.8. | Izolācijas darbi (24.09.) | 125 |
| 6.9. | Labiekārtošanas darbi (24.09.-21.10) | 125 |
| 7. | BŪVMAŠĪNU IZVĒLE | 125 |
| 7.1. | Ekskavatora aprēķins | 125 |
| 7.2. | Celtņa aprēķins | 126 |
| 8. | PAGAIDU ELEKTRĪBAS APRĒĶINS | 129 |
| 9. | PAGAIDU ŪDENSAPGĀDES APRĒĶINS | 130 |
| 10. | OBJEKTA EKONOMISKIE RĀDĪTĀJI | 131 |
| 10.1. | Lokālā tāme stabveida pamatu betonēšanai | 131 |
| 10.2. | Kopejā tāme | 132 |
| 11. | DARBA AIZSARDZĪBA, DROŠĪBAS TEHNIKA, UGUNSDROŠĪBA UN VIDES AIZSARDZĪBA | 133 |
| 11.1. | Vispārēja darba drošība un vides aizsardzība | 133 |
| 11.2. | Darba drošība sagatavošanās darbos | 134 |
| 11.3. | Darba drošība zemes darbos | 134 |
| 11.4. | Darba drošība betonēšanas darbos | 134 |
| 11.5. | Darba drošība montāžas darbos | 135 |
| 11.6. | Darba drošība namdaru darbos | 135 |
| 11.7. | Darba drošība apdares darbos | 135 |
| 11.8. | Darba drošība izolācijas darbos | 135 |
| 11.9. | Darba drošība labiekārtošanas darbos | 136 |
| IZMANTOTĀ LITERATŪRA | 137 | |
| PIELIKUMS | 138 |
11. DARBA AIZSARDZĪBA, DROŠĪBAS TEHNIKA, UGUNSDROŠĪBA UN VIDES AIZSARDZĪBA
11.1. Vispārēja darba drošība un vides aizsardzība
Iepazīstoties ar būvprojektu nepieciešams izvērtēt tajā ietvertos riska faktorus, kas var apdraudēt cilvēku vai apkārtējas vides drošību. Būvlaukumā jāievēro atļautais braukšanas ātrums un jānorobežo bīstamās vietas. Traumas būvdarbu laikā var iegūt no neuzmanības būvmašīnu tuvumā vai bojātiem elektroinstrumentiem.
Pirms būvdarbu uzsākšanas darba drošības koordinators sastāda darba aizsardzības plānu un nosūta Valsts darba inspekcijai paziņojumu par būvdarbu uzsākšanu. Darba aizsardzības plānam jāatrodas objektā visiem pieejamā vietā. [23] Pirms darbu veikšanas darba devējs veic darba drošības apmācību un veic darbinieku veselības pārbaudi. Pēc darbinieku iepazīstināšanas ar darba drošības pasākumiem, tiek veikta atzīme atbilstošajā instruktāžas žurnālā. [24]
Objektā jābūt izvietotām zīmēm, kurās norādītas pirmās medicīniskās palīdzības atrašanās vietai, avārijas dienestu tālruņa numuriem un objekta atbildīgās personas tālruņa numuram.
Visiem darbiniekiem jāizsniedz individuālie aizsardzības līdzekļi – daba apģērbs, apavi, ķivere, cimdi, aizsargbrilles, respiratori, atstarojošas vestes. Pirms darba jāpārliecinās par elektroinstrumentu, iekārtu un būvmašīnu stāvokli. Pārtraucot darbu vai pēc tā elektroinstrumenti jāatvieno no strāvas.
Objektā jāievēro ugunsdrošības prasības, nepieciešams izvietot hidrantus, ugunsdzēsības stendu, kas būtu brīvi pieejams un viegli sasniedzams avārijas gadījumā. Ugunsgrēka gadījumā elektrības padeve objektam jāatslēdz pēc iespējas ātrāk. [12]
Notiekot negadījumam visi darbi jāaptur un jāveic visi nepieciešamie drošības pasākumi.
…
Pētnieciskajā darbā tiek analizēti siltumizolācijas materiāli, kuru iestrādi konstrukcijā veic ar pūšamo iestrādes tehniku, apskatīti plašāk izmantotie materiāli un salīdzināti ar inovatīviem materiāliem. Tiek izpētītas to siltumtehniskās, ugunsdrošības, skaņas izolācijas un citas īpašības. Apskatītas piecu dažādu tipu konstrukcijas un aprēķināts nepieciešamas siltumizolācijas biezums, kā arī izmantotie papildmateriāli. Tiek veikti tāmēšanas darbi visiem konstrukciju un siltumizolācijas materiālu variantiem 100 m2 un 1000 m2 apjomā. Tiek izvērtēti visi aspekti un izcelti visizdevīgākie risinājumi konstrukciju tipiem. Inženierprojektā tiek izstrādāts liellopu kūts ēkas projekts, kas sastāv no liellopu kūts daļas un dzīvojamās zonas. Darbā tiek aprakstīta ēkas arhitektūra un konstruktīvie risinājumi. Noteiktas siltumtehniskās un ugunsdrošības prasības, kā arī inženiertehniskie risinājumi. Tiek salīdzināti trīs dažādu tipu elementi un izvēlēts visizdevīgākais. Tiek aprēķināta kopne, tās elementi un mezgli, kolonna, pamati un grunts zem tiem. Visi aprēķini veikti vadoties no iegūtajām slodzēm. Projekta ietvaros apskatīta darba organizācija, būvmašīnu izvēle, elektrības un ūdensapgādes aprēķins, kā arī izveidota lokālā un objekta kopējā tāme. Izstrādāti arhitektūras un konstrukciju rasējumi, kalendārais grafiks un tehnoloģiskās kartes.
Pielikumi PDF formātā.
- Akmens materiālu pārstrādes mašīnas
- Inovatīvo siltumizolācijas materiālu analīze, izmantojot pūšamo iestrādes metodi. Liellopu kūts ēkas projekts
- Siltumizolācijas un skaņizolācijas materiāli
-
Tu vari jebkuru darbu ātri pievienot savu vēlmju sarakstam. Forši!Rūpniecības preču veikala un administratīvās ēkas projekts Rīgā, Tīnūžu ielā b/n
Diplomdarbs augstskolai94
-
Būvniecības materiālu tirgus izpēte bruģa ražotnes darbības pilnveidei
Diplomdarbs augstskolai128
-
Dzīvojamo māju būvizmaksu un ekspluatācijas izdevumu analīze atkarībā no izvēlētiem būvmateriāliem
Diplomdarbs augstskolai45
-
Betona virsmu aizsardzības metožu efektivitātes analīze (gājēju pārvada pār Kārļa Ulmaņa gatvi pie Kalnciema ielas projekts)
Diplomdarbs augstskolai122
-
Mazumtirdzniecības veikala "Ruvar" izbūve Rēzeknē
Diplomdarbs augstskolai73

