Referāts
Tehnoloģijas
Celtniecība un būvdarbi
Starpstāvu pārseguma nesošo tērauda konstrukciju projektē...-
Starpstāvu pārseguma nesošo tērauda konstrukciju projektēšana
| Nr. | Sadaļas nosaukums | Lpp. |
| 1. | Paskaidrojuma raksts un darba uzdevums | 4 |
| 2. | Aprēķinu daļa | 7 |
| 2.1. | Pārseguma siju sistēmas projektēšana | 7 |
| 2.1.1. | Klājsiju soļa noteikšana | 7 |
| 2.2. | Klājsiju projektēšana | 7 |
| 2.2.1. | Uz klājsijām iedarbojošos slodžu noteikšana | 7 |
| 2.2.2. | Klājsiju šķērsgriezuma noteikšana un pārbaudes | 8 |
| 2.2.2.1. | Klājsijas statiskais aprēķins | 8 |
| 2.2.2.2. | Tērauda stiprības klase | 8 |
| 2.2.2.3. | Šķērsgriezuma minimāli nepieciešamais elastības pretestības moments | 9 |
| 2.2.2.4. | Šķērsgriezuma izvēle no sortimenta tabulas | 9 |
| 2.2.2.5. | Izvēlētā šķērsgriezuma klases noteikšana | 9 |
| 2.2.2.6. | Izvēlētā šķērsgriezuma stiprības pārbaudes | 10 |
| 2.2.2.7. | Stinguma pārbaudes | 12 |
| 2.3. | Galvenās sijas projektēšana | 14 |
| 2.3.1. | Galvenās sijas aprēķina shēma, uz siju iedarbojošos slodžu un piepūļu noteikšana | 14 |
| 2.3.3. | Sijas šķērsgriezuma komponēšana | 16 |
| 2.3.3.1. | Šķērsgriezuma minimālā augstuma noteikšana | 16 |
| 2.3.3.2. | Šķērsgriezuma optimālā augstuma noteikšana | 16 |
| 2.3.3.3. | Sijas sieniņas galīga biezuma noteikšana | 17 |
| 2.3.3.4. | Sijas šķērsgriezuma horizontālo plauktiņu izmēru noteikšana | 17 |
| 2.3.3.5. | Sijas augstuma un sieniņas augstuma galīgo vērtību noteikšana | 18 |
| 2.3.3. | Izvēlētā šķērsgriezuma statisko raksturojumu noteikšana | 18 |
| 2.3.4. | Sijas izvēlētā šķērsgriezuma pārbaudes | 20 |
| 2.3.4.1. | Izvēlētā šķērsgriezuma klases noteikšana | 20 |
| 2.3.4.2. | Izvēlētā šķērsgriezuma stiprības pārbaudes | 20 |
| 2.3.4.3. | Sijas sieniņas vietējas noturības pārbaude | 23 |
| 2.3.4.4. | Sijas šķērsribu šķērsgriezuma noteikšana | 25 |
| 2.3.4.5. | Sijas vispārējās noturības pārbaude | 26 |
| 2.3.4.6. | Sijas stinguma pārbaude | 26 |
| 2.3.5. | Sijas plauktiņu (joslu) un sieniņas metinātā savienojuma aprēķins | 26 |
| 2.3.6. | Sijas balstdaļas aprēķins | 27 |
| 2.4. | Galvenās sijas un klājsiju sajūguma mezgla projektēšana | 29 |
| 2.4.1. | Skrūvsavienojuma nestspējas noteikšana | 30 |
| 2.4.1.1. | Nestspējas pārbaude cirpē | 30 |
| 2.4.1.2. | Nestspējas pārbaude pēc savienojamo elementu nestspējas virsmas spiedē | 31 |
| 2.4.1.3. | Sijas sieniņas stiprības pārbaude uz izraušanu | 31 |
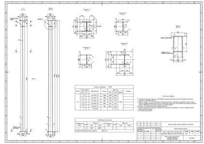
| 2.5. | Centriski spiestu kolonnu projektēšana | 32 |
| 2.5.1. | Kolonnu stieņa aprēķins | 32 |
| 2.5.2. | Pilnsienas kolonnu stieņa šķērsgriezuma projektēšana | 34 |
| 2.5.2.1. | Tērauda stiprības klases noteikšana | 34 |
| 2.5.2.2. | Šķērsgriezuma orientējošo raksturojumu noteikšana | 34 |
| 2.5.2.3. | Šķērsgriezuma klases noteikšana | 35 |
| 2.5.2.4. | Šķērsgriezuma ģeometrisko un statisko parametru noteikšana | 35 |
| 2.5.2.5. | Kolonnas stieņa aprēķina parametru noteikšana un vispārējas noturības pārbaude | 35 |
| 2.5.3. | Kolonnas augšgala projektēšana | 36 |
| 2.5.4. | Kolonnas bāzes projektēšana | 38 |
| 2.5.5. | Kolonnas stieņa un balstplātnes metinātā savienojuma aprēķins | 41 |
| 3. | Grafiskā daļa | 41 |
1. Paskaidrojuma raksts un darba uzdevums
Projektā paredzēta tā saucamā normālā tipa siju sistēma, kas sastāv no saliktām metinātām
galvenajām sijām un velmētām klājsijām. Pēc statiskās shēmas izmantotas statiski noteicamas
(vienlaiduma divbalstu) sijas.
Kā norādīts projektēšanas uzdevumā, galveno siju balstīšanai pa ēkas garenvirziena vidusasi
paredzētas četras tērauda pilnsienas kolonnas.
Lai maksimāli samazinātu nepieciešamo materiāla (tērauda) patēriņu un projektu padarītu
pēc iespējas ekonomiskāku, klājsijas izvietoju pēc ar soli s = 1,57 m (smax = 1,8 m). Pie šāda klājsiju
izvietojuma būs nepieciešami lielāki velmētie profili, kas sadārdzina projektu, bet tā kā montāžas
elementu skaits ir pēc iespējas mazs, tas ļauj samazināt montāžas izmaksas. Klājsiju izvietojuma
solis pieņemts vienāds visos laidumos, lai unificētu siju sistēmas elementus.
Uz projektējamā pārseguma paredzēts izvietot noliktavas telpas. Ēkas jumta pārsegumu
paredzēts balstīt uz ārsienām.
Zem pārseguma atrodošās telpas platums B = 11 m, garums = 55 m, augstums = 8 m.
Starpstāvu pārsegumu siju sistēmu paredzēts balstīt uz ēkas ārsienām un uz četrām pilnsienas
kolonnām, kuras izvietotas pa ēkas garenvirziena vidusasi 11 m attālumā viena no otras un no
ārsienām.
Uz projektējamās siju sistēmas balstīta monolīta dzelzsbetona plātne ar biezumu tp = 7,0 cm.
Šī plātne stingri saistīta ar tērauda sijām un nodrošina to vispārējo noturību.
Ēkas otrā stāva grīdas konstrukcijā paredzēts 3 cm asfaltbetona slānis.
Starpstāvu pārsegumam pieliktās lietderīgās slodzes raksturīgā (normatīvā) vērtība pk = 10,1
kN/m2…
Metāla konstrukcijas - studiju projekts (kopne)
Materiāls ir PDF formātā.
- Perforētās lentes, profili un lapas, un to savienojumi
- Referāts fizikālajā materiālzinātnē
- Starpstāvu pārseguma nesošo tērauda konstrukciju projektēšana
-
Tu vari jebkuru darbu ātri pievienot savu vēlmju sarakstam. Forši!Perforētās lentes, profili un lapas, un to savienojumi
Referāts augstskolai22
-
Referāts fizikālajā materiālzinātnē
Referāts augstskolai77
-
Būvju uzturēšana. 103.sērijas daudzdzīvokļu ēkas apsekošana
Referāts augstskolai61
-
Daudzdzīvokļu dzīvojamās mājas Celtnieku ielā 15, Jēkabpilī, apsekošana un tehniskā stāvokļa uzlabošana
Referāts augstskolai30
-
Dzelzsbetona izmantošana industriālā būvniecībā
Referāts augstskolai20

