-
Pārvades elektriskā tīkla projektēšana
| Nr. | Sadaļas nosaukums | Lpp. |
| Ievads | 4 | |
| 1. | Tīkla konfigurācijas varianti un tīkla nominālā sprieguma izvēle | 5 |
| 1.1. | Tīkla konfigurācijas izvēle | 5 |
| 1.2. | Slodžu jaudas noteikšana | 7 |
| 1.3. | Tīkla nominālā sprieguma izvēle | 8 |
| 2. | Jaudas plūsmu sadalījums | 10 |
| 2.1. | II shēmas jaudas plūsmas sadalījums | 10 |
| 2.2. | IV shēmas jaudas plūsmu sadalījums | 13 |
| 3. | Vadu Šķērsgriezumu izvēle | 15 |
| 3.1. | Vadu šķērsgriezumu izvēle II shēmai | 15 |
| 3.2. | Vadu šķērsgriezuma izvēle IV shēmai | 18 |
| 4. | Pēc ekonomiskajiem apsvērumiem izvēlēto vadu šķērsgriezuma pārbaude | 20 |
| 4.1. | Izvēlēto līnijas vadu šķērsgriezumu pārbaude pēc silšanas apstākļiem | 20 |
| 4.2. | Izvēlēto līnijas vadu šķērsgriezumu pārbaude pēc koronas zudumu ierobežojumiem | 21 |
| 4.3. | Izvēlēto līnijas vadu šķērsgriezumu pārbaude pēc pieļaujamiem sprieguma zudumiem | 23 |
| 4.3.1. | II shēmas vadu šķērsgriezumu pārbaude pēc sprieguma zudumiem | 24 |
| 4.3.2. | IV shēmas vadu šķērsgriezumu pārbaude pēc sprieguma zudumiem | 26 |
| 5. | Neto pašreizējās vērtības noteikšana | 28 |
| 5.1. | Neto pašreizējā vērtība II tīkla izbūves variantam | 30 |
| 5.2. | Neto pašreizējā vērtība IV tīkla izbūves variantam | 32 |
| 6. | Rezultātu salīdzinājums | 34 |
| 7. | Precizētais jaudas plūsmu sadalījums optimālajam variantam | 35 |
| 8. | Secinājumi | 37 |
| 9. | Literatūra | 38 |
| Pielikumi | 39 |
8 SECINĀJUMI
Kursa projekta mērķis bija projektēt pārvades elektriskus tīklus, darbā tika izvēlēti pieci iespējamie tīkla konfigurācijas varianti; no kuriem tika izvēlēts optimālākais variants, izmantojot aptuvena aprēķina metodi. No sākuma no piecām shēmas tika atmestas trīs, izvēloties pēc kopēja garuma. Kā garākie tika atmesti I., III., un V. shēma, pārējiem veikti aprēķini, ar kuru palīdzību tika izvēlēts visoptimālākais projektvariants.
Kā nominālais spriegums tika izvēlēts 330 KV tīkla spriegums un izvēloties vadu šķērsgriezumu pie ekonomiska šķērsgriezuma vēra tika ņemts: pieļaujama strāva, koronas zudumi un vadu mehāniska izturība. Koronas zudumi izrādījās noteicošais faktors, ka rezultāta tika izvēlēti 2 AC-300/39 markas vadi. Sprieguma zudumi visos gadījumos nepārsniedza 4,65% normāla darba režīmā vai 15,967% pēcavārijas darba režīmā.
Izdarot izmaksu aprēķinus un nosakot NPV piecu gadu termiņam abiem izstrādātajiem projektvariantiem, kā izdevīgi ekonomiskais izrādījās IV variants, kuram NPV= Eur.
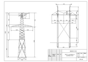
Darbā nobeigumā doti visu projektvariantu savienojumu principiālās shēmas, optimālā izbūves varianta aplēses shēma ar normālā darba režīma parametriem un tērauda starpbalsta un enkurbalsta skices ar galvenajiem izmēriem.
…
1. Izvēlēties 3-4 tehniski pieņemamus elektriskā tīkla konfigurācijas variantus patērētāju elektroapgādei. 2. Izvēlēties tīkla nominālo spriegumu. 3. Atrast aptuveno jaudas plūsmas sadalījumu visos izvēlētajos variantos normālā un pēcavārijas darba režīmā (par pamatu ņem līnijas garumus un slodžu jaudas). 4. Noteikt vadu ekonomisko šķērsgriezumus izvēlētajiem tīklu variantiem un pārbaudīt tos pēc nosacījuma un pēc pieļaujamām silšanas strāvām. 5. Aprēķināt elektrisko tīklu aizvietošanas shēmu elektriskos parametrus. 6. Pārbaudīt elektrisko tīklu shēmas pēc pieļaujamā sprieguma zuduma normālā un pēcavārijas darba režīmā. 7. Noteikt aktīvās un reaktīvās jaudas zudumus tīkla shēmās. 8. Noteikt izmaksu neto pašreizējo vērtību (NPV) trīs tehniski konkurētspējīgākajiem tīkla uzbūves variantiem (T = 5 gadi). 9. Salīdzināt aprēķina rezultātus un izvēlēties optimālo elektroapgādes variantu. 10. Izdarīt precizēto normālā un pēcavārijas darba režīma aprēķinu ar datoru. Dot aprēķina rezultātu analīzi un slēdzienus. Grafiskā daļa: a) izvelēto variantu principiālās savienojumu shēmas ar sākuma datiem; b) optimālā elektroapgādes varianta aplēses shēma ar normālā darba režīma parametriem; c) starpbalsta un enkurbalsta skices ar galvenajiem izmēriem.
Pielikums PDF formātā.
- Investīciju efektivitātes aprēķins zemsprieguma tīkla objektam
- Pārvades elektriskā tīkla projektēšana
- Tīkla konfigurācijas un vienādojumu sistēmas risinājuma izmaiņas
-
Tu vari jebkuru darbu ātri pievienot savu vēlmju sarakstam. Forši!Tīkla konfigurācijas un vienādojumu sistēmas risinājuma izmaiņas
Referāts augstskolai14
-
Investīciju efektivitātes aprēķins zemsprieguma tīkla objektam
Referāts augstskolai6
-
Ēku grupas gāzes apgāde
Referāts augstskolai11
Novērtēts! -
Elektrisko mašīnu projektēšana
Referāts augstskolai34
-
Enerģētikas nozares raksturojums Latvijā
Referāts augstskolai13

