Pievienot darbus Atzīmētie0
Darbs ir veiksmīgi atzīmēts!

Atzīmētie darbi

Skatītie0

Skatītie darbi

Grozs0
Darbs ir sekmīgi pievienots grozam!

Grozs

Reģistrēties

interneta bibliotēka
Atlants.lv bibliotēka
Akcijas un īpašie piedāvājumi 2 Atvērt
4,99 € Ielikt grozā
Gribi lētāk?
Identifikators:738972
 
Autors:
Vērtējums:
Publicēts: 07.06.2011.
Valoda: Latviešu
Līmenis: Vidusskolas
Literatūras saraksts: Nav
Atsauces: Nav
Darba fragmentsAizvērt

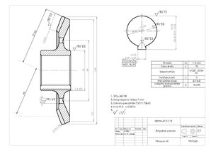
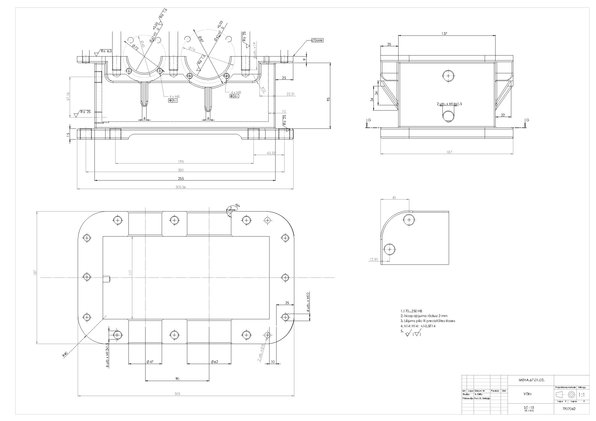
Uzdevums: pārvadīt griezes momentu no elektromotora caur reduktoru un piedzīt ķēdes transportieri.
Uzbūve: proektējamais piedziņas mehānisms sastāv no elektromotora, sajūgiem un divkāpju zobrata reduktora.
Reduktors ir koniski-cilindrisks. Darbības princips: griezes momentu pārvada caur elastīgo sajūgu uz reduktora ātrgaitas vārpstu, tālāk caur konisko zobratu ātrgaitas pakāpi uz starpvārpstu, no starpvārpstas caur cilindrisko slīpzobu zobratu lēngaitas pakāpi uz lēngaitas vārpstu, caur zobsajūgu uz ķēdes konveijera dzenošo vārpstu uz kuras nostiprinātas konveijera ķēžu zvaigznītes.
Mehānisma raksturojums :
- zvaigznīšu aploces spēks Ft = 2 kN;
- zvaigznītes zobu skaits z = 7;
- konveijera ķēdes solis t = 80 mm;
- ķēdes ātrums v = 1 m/s;
- ekvivalentās slodzes grafika numurs - 33;
- darbmūžs L = 10 gados ;
- relatīvais ieslēgšanas ilgums R = 15 % ;
- mehānisma izmantošanas koeficients Kd = 0,1 (diennaktī)
- Kg = 0,2 (gadā);
- slodzes klase H 0,315 ; ekvivalentais koeficients K HE = 0,315.
- ražošanas apjoms – sīksēriju.…

Autora komentārsAtvērt
Parādīt vairāk līdzīgos ...

Atlants

Izvēlies autorizēšanās veidu

E-pasts + parole

E-pasts + parole

Norādīta nepareiza e-pasta adrese vai parole!
Ienākt

Aizmirsi paroli?

Draugiem.pase
Facebook

Neesi reģistrējies?

Reģistrējies un saņem bez maksas!

Lai saņemtu bezmaksas darbus no Atlants.lv, ir nepieciešams reģistrēties. Tas ir vienkārši un aizņems vien dažas sekundes.

Ja Tu jau esi reģistrējies, vari vienkārši un varēsi saņemt bezmaksas darbus.

Atcelt Reģistrēties