Pievienot darbus Atzīmētie0
Darbs ir veiksmīgi atzīmēts!

Atzīmētie darbi

Skatītie0

Skatītie darbi

Grozs0
Darbs ir sekmīgi pievienots grozam!

Grozs

Reģistrēties

interneta bibliotēka
Atlants.lv bibliotēka
Akcijas un īpašie piedāvājumi 2 Atvērt
4,99 € Ielikt grozā
Gribi lētāk?
Identifikators:616830
 
Vērtējums:
Publicēts: 10.02.2011.
Valoda: Latviešu
Līmenis: Augstskolas
Literatūras saraksts: 4 vienības
Atsauces: Nav
SatursAizvērt
Nr. Sadaļas nosaukums  Lpp.
Ievads    3
2.  Paskaidrojumu raksts    4
3.2.  Pirmā kinemātiskā shēma    5
3.3.  Otrā kinemātiskā shēma    6
3.4.  Trešā kinemātiskā shēma    7
3.5.  Tālāka projekta varianta izvēle    8
4.  Kinemātiskie aprēķini    9
4.2.  Elektro piedziņas aprēķins    12
4.3.  Pneimocilindra izvēle    13
5.  Izmantotā literatūra    14
6.  Pielikums    15
Darba fragmentsAizvērt

Ievads
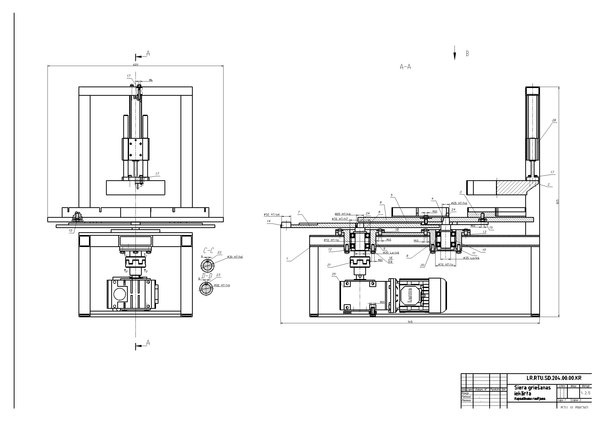
Studiju projekta „ Konstruēšanas pamati” uzdevuma, izstrādāju siera griešanas iekārtu.
Pēc piedziņas shēmas izveidošanas veicu aprēķinus elektromotora nepieciešamas jaudas
noteikšanai pec projekta izejas datiem. Pēc tam veicu pneimocilindra spēka noteikšanu un to
izvēli no ražotāja kataloga. Tiek aprēķināts Maltas krusta mehānisms ar stiprības pārbaudi.
Darba uzdevuma risinājumi turpmāk aprēķinu un paskaidrojumu rakstā. Studiju darbs sastāv no
aprēķinu paskaidrojuma raksta un grafiskās daļas.

Paskaidrojumu raksts.
Konstruktora uzdevuma mērķis ir automatizēt siera griešanas procesa daļu. Uzdevuma
tiek iekļauts: Sagataves galda pagriešanas apstrādes zonā, apstrāde – dotajā gadījuma siera
rituļu sagriešana vienādas piecos gabalos. Sagataves galda tālāka kustība nākamam griezumam.
Apstrādes objekts – siera ritulis ar gabarīta izmēriem: rādiusu R = 100 mm; un augstumu
h = 30 mm. Ražošanas tips – lielsēriju ražošana, kas nosāka, ka izstrādātai iekārtai ir jābūt
pietiekami ražīgai un ekspluatācija drošai. Tas izpildelementiem ir jāiztur uzdotā slodze.
Nākamajā darba sadaļā būs izstrādāti un izvērtēti vairāki šajā uzdevuma risinājuma
varianti. Labākais uzdevuma risinājuma variants, tiks izvēlēts pēc efektivitātes, vienkāršuma,
darba drošības un ekonomiskajiem apstākļiem kuri tiks salīdzināti.

Autora komentārsAtvērt
Parādīt vairāk līdzīgos ...

Atlants

Izvēlies autorizēšanās veidu

E-pasts + parole

E-pasts + parole

Norādīta nepareiza e-pasta adrese vai parole!
Ienākt

Aizmirsi paroli?

Draugiem.pase
Facebook

Neesi reģistrējies?

Reģistrējies un saņem bez maksas!

Lai saņemtu bezmaksas darbus no Atlants.lv, ir nepieciešams reģistrēties. Tas ir vienkārši un aizņems vien dažas sekundes.

Ja Tu jau esi reģistrējies, vari vienkārši un varēsi saņemt bezmaksas darbus.

Atcelt Reģistrēties