Referāts
Tehnoloģijas
Celtniecība un būvdarbi
“Koka un plastmasu konstrukcijās – studiju projekts” Tehn...-
“Koka un plastmasu konstrukcijās – studiju projekts” Tehniskais projekts – kokapstrādes ceham
| Nr. | Sadaļas nosaukums | Lpp. |
| STUDIJU PROJEKTA UZDEVUMS | 6 | |
| PASKAIDROJOŠAIS RAKSTS | 7 | |
| 1. | ĒKAS KONSTRUKTĪVĀ SHĒMA | 8 |
| 2. | SLODŽU NOTEIKŠANA | 9 |
| 2.1. | Jumta pārseguma paneļa pašsvars | 9 |
| 2.2. | Kopnes pašsvars | 10 |
| 2.3. | Sniega slodze | 10 |
| 2.4. | Vēja slodze | 12 |
| 3. | JUMTA PANEĻA APRĒĶINS | 24 |
| 3.1. | Paneļa vispārīgais apraksts | 24 |
| 3.2. | Jumta siltumtehniskais aprēķins | 25 |
| 3.3. | Paneļa ribu konstruēšana | 26 |
| 3.4. | Slodžu noteikšana | 27 |
| 3.4.1. | Pastāvīgo slodžu aprēķins | 27 |
| 3.4.2. | Mainīgo slodžu aprēķins | 28 |
| 3.4.3. | Summārā aprēķina slodze | 28 |
| 3.5. | Piepūļu noteikšana | 28 |
| 3.6. | Paneļa šķērsgriezuma plauktu platuma noteikšana | 29 |
| 3.7. | Šķērsgriezuma reducētie ģeometriskie raksturlielumi | 29 |
| 3.7.1. | Reducējot uz plauktu materiālu: | 29 |
| 3.7.2. | Reducējot uz ribu materiālu | 30 |
| 3.8. | Paneļa elementu nestspējas pārbaude | 31 |
| 3.8.1. | Spiestā plaukta normālspriegumu stiprības pārbaude | 31 |
| 3.8.2. | Stieptā plaukta normālspriegumu stiprības pārbaude: | 31 |
| 3.8.3. | Ribas normālspriegumu stiprības pārbaude | 32 |
| 3.8.4. | Ribas tangenciālo spriegumu stiprības pārbaude | 32 |
| 3.8.5. | Koksnes stiprības skaldē līmēto šuvju zonā pārbaude | 32 |
| 3.9. | Paneļu spiesta plaukta noturības pārbaude | 33 |
| 3.10. | Paneļa funkcionālās atbilstības pārbaude | 33 |
| 3.11. | Paneļa stiprības pārbaude uz montāžas slodzi | 34 |
| 4. | KOPNES ELEMENTU APRĒĶINS | 35 |
| 4.1. | Asspēka piepūles kopnē | 35 |
| 4.1.1. | Pašsvara slodze: | 35 |
| 4.1.2. | Nesanesta sniega slodze | 36 |
| 4.1.3. | Sanesta sniega slodze | 36 |
| 4.1.4. | Vēja maksimālais pozitīvais spiediens: | 36 |
| 4.1.5. | Vēja maksimālais negatīvais spiediens | 36 |
| 4.1.6. | Maksimālās asspēka vērtības | 37 |
| 4.1.7. | Piepūļu kombinācijas | 37 |
| 4.2. | Momenta piepūles kopnē | 37 |
| 4.2.1. | Pašsvara slodze: | 37 |
| 4.2.2. | Nesanesta sniega slodze | 38 |
| 4.2.3. | Sanesta sniega slodze | 38 |
| 4.2.4. | Vēja maksimālais pozitīvais spiediens: | 38 |
| 4.2.5. | Vēja maksimālais negatīvais spiediens | 39 |
| 4.2.6. | Maksimālās momenta vērtības: | 39 |
| 4.2.7. | Piepūļu kombinācijas | 39 |
| 4.3. | Augšējās joslas elementu šķērsgriezuma noteikšana | 40 |
| 4.3.1. | Normālspriegumu stiprības pārbaude | 40 |
| 4.3.2. | Elementu noturības pārbaude | 41 |
| 4.4. | Režģojuma elementu šķērsgriezuma noteikšana | 42 |
| 4.4.1. | Normālspriegumu stiprības pārbaude | 43 |
| 4.4.2. | Elementu noturības pārbaude | 43 |
| 4.5. | Statu šķērsgriezuma noteikšana | 44 |
| 4.5.1. | Normālspriegumu stiprības pārbaude | 45 |
| 4.5.2. | Elementu noturības pārbaude | 45 |
| 4.6. | Apakšējās joslas elementu šķērsgriezuma noteikšana | 47 |
| 4.6.1. | Normālspriegumu stiprības pārbaude | 48 |
| 4.6.2. | Elementu noturības pārbaude | 48 |
| 4.7. | Kopnes izlieču pārbaude | 49 |
| 4.7.1. | Pieļaujamā izliece | 49 |
| 4.7.2. | Kopnes izlieces | 49 |
| 5. | KOLONNAS APRĒĶINS | 51 |
| 5.1. | Slodžu kombinācijas | 51 |
| 5.2. | Piepūles kolonnās | 51 |
| 5.2.1. | 1.slodžu kombinācija | 52 |
| 5.2.2. | 2.slodžu kombinācija | 52 |
| 5.2.3. | 3.slodžu kombinācija | 53 |
| 5.2.4. | 4.slodžu kombinācija | 54 |
| 5.2.5. | Piepūles kolonnās | 55 |
| 5.2.6. | Jāizpildās sekojošajai sakarībai | 55 |
| 5.2.7. | Noturības pārbaude | 56 |
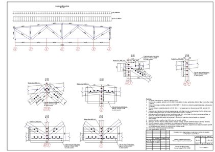
| 6. | MEZGLU APRĒĶINS | 58 |
| 6.1. | Kopnes sajūguma mezgls ar kolonnu | 58 |
| 6.1.1. | Vainagsijas pārbaude virsmas spiedē perpendikulāri šķiedrām | 58 |
| 6.1.2. | Kolonnas pārbaude uz virsmas spiedi paralēli šķiedrām | 59 |
| 6.2. | Pamatu mezgls | 59 |
| 6.2.1. | Enkurskrūves aprēķins | 60 |
| 6.2.2. | Vertikālās traversas aprēķins | 61 |
| 6.2.3. | Vertikālās traversas nostiprināšanai, nepieciešamo bultskrūvju aprēķins | 62 |
| 6.2.4. | Vertikālās ribas aprēķins | 63 |
| 6.2.5. | Horizontālās ribas aprēķins | 65 |
| 6.2.6. | Kolonnas balstplātnes aprēķins | 66 |
| 7. | SECINĀJUMI | 68 |
| IZMANTOTĀ LITERATŪRA | 69 | |
| PIELIKUMI | 71 |
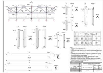
ĒKAS KONSTRUKTĪVĀ SHĒMA
Kursa darba ietvaros tiek izstrādāts tehniskais projekts kokapstrādes ceham Alūksnē.
Attālumi starp ēkas asīm: 26 m – šķērsām; 52 m – garenvirzienā. Augstums: 4,6m – līdz nesošās
konstrukcijas apakšējai joslai.
Sākotnēji noteicu kopnes izmērus. Trapecveida kopnei, ar laiduma garumu 26m, augstuma
un platuma attiecība ℎ/…
Projekts izstrādāts atbilstoši šādiem būvnormatīviem un standartiem: • 2013. gada 09. jūlija “Būvniecības likums”; • MK 2014.gada 19.augusta noteikumi nr.500 “Vispārīgie būvnoteikumi”; • MK 2014.gada 02.septembra noteikumi nr.529 “Ēku būvnoteikumi”; • LBN 203-15 “Betona būvkonstrukciju projektēšana”; • LBN 204-14 “Tērauda būvkonstrukciju projektēšana”; • LBN 206-14 “Koka būvkonstrukciju projektēšana”; • Eirokodekss LVS EN 1990 "Konstrukciju projektēšanas pamati"; • Eirokodeksa projektēšanas standartu saimes LVS EN 1991 “1. Eirokodekss. Iedarbes uz konstrukcijām” standarti; • Eirokodeksa projektēšanas standartu saimes LVS EN 1992 “2. Eirokodekss. Betona konstrukciju projektēšana” standarti; • Eirokodeksa projektēšanas standartu saimes LVS EN 1993 “3. Eirokodekss. Tērauda konstrukciju projektēšana” standarti; • Eirokodeksa projektēšanas standartu saimes LVS EN 1995 “5. Eirokodekss. Koka konstrukciju projektēšana” standarti.
Materiāls ir PDF formātā.
- “Koka un plastmasu konstrukcijās – studiju projekts” Tehniskais projekts – kokapstrādes ceham
-
Koka terases projekts
Referāts15 Celtniecība un būvdarbi, Nekustamais īpašums, Vadība
- Magnetrona izputināšanas tehnoloģija un vara īpašības
-
Tu vari jebkuru darbu ātri pievienot savu vēlmju sarakstam. Forši!Koka un plastmasas konstrukcijas
Referāts augstskolai89
-
Dzelzsbetona konstrukcijas
Referāts augstskolai21
-
Koka pārseguma siju pastiprināšana
Referāts augstskolai12
-
Vieglais betons un to konstrukcijas
Referāts augstskolai26
-
Siltumizolācijas uzlabošana pārsegumu konstrukcijās
Referāts augstskolai12

