Pievienot darbus Atzīmētie0
Darbs ir veiksmīgi atzīmēts!

Atzīmētie darbi

Skatītie0

Skatītie darbi

Grozs0
Darbs ir sekmīgi pievienots grozam!

Grozs

Reģistrēties

interneta bibliotēka
Atlants.lv bibliotēka
Akcijas un īpašie piedāvājumi 2 Atvērt
8,49 € Ielikt grozā
Gribi lētāk?
Identifikators:622997
 
Autors:
Vērtējums:
Publicēts: 01.02.2024.
Valoda: Latviešu
Līmenis: Augstskolas
Literatūras saraksts: Nav
Atsauces: Nav
Laikposms: 2011. - 2020. g.
2021. - 2025. g.
SatursAizvērt
Nr. Sadaļas nosaukums  Lpp.
  Uzdevums    4
  Izejas dati    4
  Paskaidrojuma raksts    4
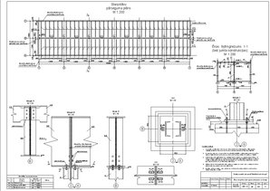
1.  Projektējamā pārseguma nesošo elementu izvietojuma shēma    5
2.  Klājsiju projektēšana    6
2.1.  Uz klājsijām iedarbojošos slodžu noteikšana    6
2.2.  Klājsiju šķērsgriezuma noteikšana un pārbaudes    6
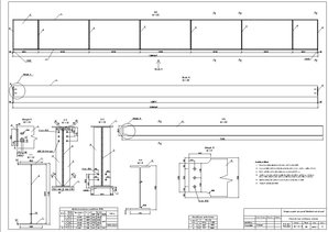
3.  Galvenās sijas projektēšana    12
3.1.  Galvenās sijas aprēķina shēma, uz siju iedarbojošos slodžu un piepūļu noteikšana    12
3.2.  Tērauda stiprības klase un aprēķina pretestība    14
3.3.  Sijas šķērsgriezuma komponēšana    14
3.4.  Sijas izvēlēta šķērsgriezuma pārbaude    18
3.5.  Sijas plauktiņu (joslu) un sieniņas metinātā savienojuma (joslu šuvju) aprēķins    23
3.6.  Sijas balstdaļas aprēķins    25
4.  Galvenās sijas un klājsiju sajūguma mezgla projektēšana    28
4.1.  Skrūvju izvēle    28
4.2.  Skrūvju nestspējas aprēķins    29
4.3.  Skrūvju skaita noteikšana    30
4.4.  Skrūvju izvietojums sajūguma mezglā    31
4.5.  Sijas sieniņas stiprība uz izraušanu    32
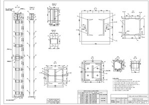
5.  Centriski spiestu kolonnu projektēšana    33
5.1.  Kolonnu stieņa aprēķina shēma    34
5.2.  Režģotu kolonnu stieņa šķērsgriezuma projektēšana    36
5.3.  Savienojošā plāksnīšu veida režģa projektēšana    43
5.4.  Kolonnu augšgala projektēšana    45
5.5.  Kolonnu bāzes projektēšana    49
  Rasējumi    53
Darba fragmentsAizvērt

Uzdevums
Izprojektēt divstāvu ēkas starpstāvu pārseguma nesošās tērauda konstrukcijas – proti:
• siju sistēmu, kuras sastāvā ietilpst velmētas klājsijas un salikta šķērsgriezuma galvenās
sijas;
• salikta šķērsgriezuma kolonnu.
Uz šī pārseguma paredzēts izvietot noliktavas telpas. Ēkas jumta pārsegums balstīts tikai uz tās
ārsienām.
Izejas dati
• Zem pārseguma esošās telpas gabarīta izmēri (ēkas iekšējie izmēri): - - -
platums B = 14,5 m
garums L = 66 m
augstums H = 6,4 m
• Starpstāvu pārseguma siju sistēmu paredzēts balstīt uz ēkas ārsienām un uz 5 salikta
režģota (RK) šķērsgriezuma tērauda kolonnām, kuras izvietotas pa ēkas garenvirziena
vidusasi vienādos atstatumos starp kolonnām un gala sienām.
• Uz projektējamo siju sistēmu no augšas tieši balstīta monolīta dzelzsbetona plātne ar
biezumu tp = 8,5 cm, ar kuru iespējams pārsegt laidumu līdz smax = 2 m. Šī plātne stingi
saistīta ar tērauda sijām un nodrošina to vispārējo noturību.
• Ēkas 2. stāva grīdas konstrukcija ta = 3 cm biezs asfaltbetona slānis.
• Starpstāvu pārsegumam pieliktās lietderīgās slodzes raksturīgā (normatīvā) vērtība pk =
9,4 kN/m2
• Tērauda konstrukciju rūpnīcas savienojumi metināti, montāžas savienojumi – metināti
vai ar skrūvēm.…

Autora komentārsAtvērt
Parādīt vairāk līdzīgos ...

Atlants

Izvēlies autorizēšanās veidu

E-pasts + parole

E-pasts + parole

Norādīta nepareiza e-pasta adrese vai parole!
Ienākt

Aizmirsi paroli?

Draugiem.pase
Facebook

Neesi reģistrējies?

Reģistrējies un saņem bez maksas!

Lai saņemtu bezmaksas darbus no Atlants.lv, ir nepieciešams reģistrēties. Tas ir vienkārši un aizņems vien dažas sekundes.

Ja Tu jau esi reģistrējies, vari vienkārši un varēsi saņemt bezmaksas darbus.

Atcelt Reģistrēties