Pievienot darbus Atzīmētie0
Darbs ir veiksmīgi atzīmēts!

Atzīmētie darbi

Skatītie0

Skatītie darbi

Grozs0
Darbs ir sekmīgi pievienots grozam!

Grozs

Reģistrēties

interneta bibliotēka
Atlants.lv bibliotēka
Akcijas un īpašie piedāvājumi 2 Atvērt
6,49 € Ielikt grozā
Gribi lētāk?
Identifikators:328395
 
Vērtējums:
Publicēts: 10.01.2024.
Valoda: Latviešu
Līmenis: Augstskolas
Literatūras saraksts: Nav
Atsauces: Nav
SatursAizvērt
Nr. Sadaļas nosaukums  Lpp.
  Skaidrojošais apraksts    3
  Topogrāfija    7
  Ģenplāns    8
  AR-01 Vispārīgie rādītāji    9
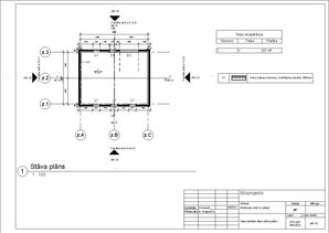
  AR-02 Dzīvojamās mājas pazemes stāva plāns    10
  AR-03 Dzīvojamās mājas 1.stāva plāns    11
  AR-04 Dzīvojamās mājas 2.stāva plāns    12
  AR-05 Dzīvojamās mājas jumta plāns    13
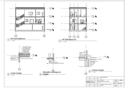
  AR-06 Dzīvojamās mājas AR šķēlumi, mezgli    14
  AR-07 Dzīvojamās mājas fasādes    15
  AR-08 Dzīvojamās mājas apjomu tabulas    16
  AR-09 Dzīvojamās mājas vizualizācija    17
  AR-10 Saimniecības ēkas stāva plāns    18
  AR-11 Saimniecības ēkas jumta plāns    19
  AR-12 Saimniecības ēkas AR šķēlumi, mezgli    20
  AR-13 Saimniecības ēkas fasādes    21
  AR-14 Saimniecības ēkas vizualizācija    22
  BK-01 Vispārīgie rādītāji    23
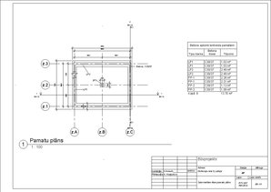
  BK-02 Dzīvojamās mājas atbalsta plātnes plāns    24
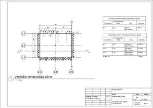
  BK-03 Dzīvojamās mājas pazemes vert. kons. plāns    25
  BK-04 Dzīvojamās mājas pazemes pārseguma plāns    26
  BK-05 Dzīvojamās mājas 1.stāva nesošo vert.kons. plāns    27
  BK-06 Dzīvojamās mājas 1.stāva pārseguma plāns    28
  BK-07 Dzīvojamās mājas 2.stāva nesošo vert.kons. plāns    29
  BK-08 Dzīvojamās mājas 2.stāva pārseguma plāns    30
  BK-09 Dzīvojamās mājas jumta pārseguma plāns    31
  BK-10 Saimniecības ēkas pamatu plāns    32
  BK-11 Saimniecības ēkas vertikālo konstrukciju plāns    33
  BK-12 Saimniecības ēkas jumta konstrukciju plāns    34
  BK-13 Saimniecības ēkas garanšķēlums, šķērsšķēlums    35
  BK-14 Auto novietnes pamatu plāns un šķēlumi    36
  BK-15 Auto novietnes vertikālo konstrukciju plāns    37
  BK-16 Auto novietnes jumta konstrukciju plāns    38
  BK-17 Auto novietnes garenšķēļums, šķērsšķēlums    39
Darba fragmentsAizvērt

Ievads
“Dzīvojamās mājas un saimniecības ēkas ar auto nojumi” būvprojekts izstrādāts
pamatojoties uz pasūtītāja uzdevuma projektēšanai, kā arī ievērojot spēkā esošus likumus,
celtniecības normas un noteikumus.
Zemesgabals, uz kura paredzēta būvniecība, adrese ir Hortenziju 8, Mārupe, Mārupes
novads, tas ir 0,4ha liels.
Esošā situācija
Zemes gabala daļa nav apbūvēta, esošajam zemes gabalam rietumu pusē atrodas asfaltēts
autoceļš un dienvidu pusē atrodas grāvis. Zemes gabalam nav apgrūtinājumu, jo zemes ir
līdzena un tam ir izveidots grants piebraucamais ceļš.
Teritorijas labiekārtojums un satiksmes organizācija
Labiekārtojot teritoriju nepieciešamības dēļ būs jānocērt koks, kura diametrs ir 50mm.
Pa teritorijas perimetru tiks uzstādīts norobežojošs koka žogs ar mūra stabiem. Teritorijā tiks
izveidots betona bruģakmens taciņas. Teritorijā iebraukšana tiek paredzēta caur veramiem
vārtiem. Teritorijas automašīnu ceļa segums – betona bruģakmens. Satiksmes organizācija
netiks traucēta.…

Autora komentārsAtvērt
Redakcijas piezīmeAtvērt
Parādīt vairāk līdzīgos ...

Atlants

Izvēlies autorizēšanās veidu

E-pasts + parole

E-pasts + parole

Norādīta nepareiza e-pasta adrese vai parole!
Ienākt

Aizmirsi paroli?

Draugiem.pase
Facebook

Neesi reģistrējies?

Reģistrējies un saņem bez maksas!

Lai saņemtu bezmaksas darbus no Atlants.lv, ir nepieciešams reģistrēties. Tas ir vienkārši un aizņems vien dažas sekundes.

Ja Tu jau esi reģistrējies, vari vienkārši un varēsi saņemt bezmaksas darbus.

Atcelt Reģistrēties