-
Būvdarbu tehnoloģija un darba drošība
Referāts40 Celtniecība un būvdarbi, Darba drošība, aizsardzība
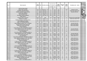
| Nr. | Sadaļas nosaukums | Lpp. |
| Ievads | 3 | |
| Ēkas apraksts. | 3 | |
| Ēkas telpiskais plānojuma risinājums. | 4 | |
| Inženiertehniskie risinājumi: | 8 | |
| Konstruktīvais risinājums | 9 | |
| Pamati: | 9 | |
| Nesošais karkass | 9 | |
| Kāpnes | 10 | |
| Jumts | 11 | |
| Terase | 11 | |
| Būvdarbu tehnoloģija | 17 | |
| Darba organizācijas apraksts | 17 | |
| Darba drošība būvlaukumā | 17 | |
| Sagatavošanas darbi | 20 | |
| Ēkas nospraušanas darbi | 21 | |
| Būvlaukuma elektroapgāde | 22 | |
| Būvlaukuma ūdensapgāde | 23 | |
| Zemes darbi | 24 | |
| Ārējo inženierkomunikāciju izbūves darbi | 27 | |
| Drošības tehnika zemes darbos | 27 | |
| Betonēšanas darbi | 28 | |
| Drošības tehnika betona darbos | 30 | |
| Kolonu betonēšana | 31 | |
| Cokolstāva grīdas betonēšana | 31 | |
| Pārsegumu betonēšana | 32 | |
| Kāpņu laukumiņu betonēšana | 33 | |
| Mūrēšanas darbi | 33 | |
| Pārsedžu montāža | 40 | |
| Metāla konstrukciju montāža | 40 | |
| Alumīnija konstrukciju montāža | 41 | |
| Namdaru un jumiķu darbi | 41 | |
| Logu un vitrīnu montāža | 41 | |
| Durvju montāža | 41 | |
| Starpsienu izbūve | 42 | |
| Izolācijas darbi | 42 | |
| Horizontālā hidroizolācija | 42 | |
| Apdares darbi | 43 | |
| Iekšējie apdares darbi | 44 | |
| Krāsošanas darbi | 44 | |
| Flīzēšanas darbi | 44 | |
| Iekšējos inžinierkomunikāciju izbūve | 45 | |
| Labiekārtošanas darbi | 45 | |
| Kvalitātes kontrole | 46 | |
| Kvalitātes kontrole betonēšanas darbos | 46 | |
| Kvalitātes kontrole mūrnieku darbos | 46 | |
| Kvalitātes kontrole izolācijas darbos | 47 | |
| Kvalitātes kontrole apmetēju darbos | 47 | |
| Kvalitātes kontrole krāsotāju darbos | 48 | |
| Būvmašīnas | 49 | |
| Izmantotā literatūra | 54 |
Kopā:
Ģipškartona loksnes - 346 gab. ( 52 gab. mitrumizturīgais ģipškartons, 64 gab. ugunsizturīgais ģipškartons)
PAROC (UNS 37) 50mm – 16.88 m3
PAROC (UNS 37) 100mm – 3.47 m3
Būvdarbu tehnoloģija
Darba organizācijas apraksts
Būvniecības procesi tiks uzsākti 2012. gada 2. aprīlī. Objekta nodošana plānota 2013. gada 27. oktobrī. Labiekārtošanas darbi, kurus nebūs iespējams pabeigt šajā laika posmā tiks veikti pie tuvākās iespējas. Darbs tiek organizēts pēc plūsmas un paralēlo darbu metodes. Strādnieki strādā 5 dienas nedēļā, vienā maiņā, maiņas garums 8h. Darba diena sākas 8.00, beidzas 17.00. Pusdienas pārtraukums 12.00-13.00. Sestdienās, svētdienās un svētku dienās darbs objektā nav paredzēts, bet īpašu apsvērumu dēļ var tikt piemērotas virsstundas. Darbiniekiem nodrošināti atbilstoši sadzīves apstākļi – paredzēti vagoniņi, kur atrodas ģērbtuves, telpas pusdienošanai un atpūtai, kā arī tualetes un dušas.…
Kursa darbs RTU būvniecības fakultātē priekšmetā Būvdarbu tehnoloģija un darba drošība, pie pasniedzēja Lapsas, darbs novērtēts ar 9, pielikumā arī kalendārais plāns.
-
Būvdarbu tehnoloģija un darba drošība
Referāts40 Celtniecība un būvdarbi, Darba drošība, aizsardzība
- Darba drošība manā darba vietā
- Darba drošība. Ugunsdrošība uzņēmumā
-
Tu vari jebkuru darbu ātri pievienot savu vēlmju sarakstam. Forši!Darba drošība manā darba vietā
Referāts augstskolai10
-
Darba drošība. Ugunsdrošība uzņēmumā
Referāts augstskolai27
-
Darba drošība
Referāts augstskolai18
-
Darba drošība manā uzņēmumā
Referāts augstskolai15
-
Darba drošība
Referāts augstskolai10
Novērtēts!

