Paraugs
Tehnoloģijas
Celtniecība un būvdarbi
Studiju darbs priekšmetā “Ģeotehnikas pamatkurss” Pamatu ...-
Studiju darbs priekšmetā “Ģeotehnikas pamatkurss” Pamatu un pamatņu projektēšana
| Nr. | Sadaļas nosaukums | Lpp. |
| 1. | Uzdevuma varianta šifrs un izejas dati | 4 |
| 1.1 | Ēkas ģeometriskie izmēri, ārsienu raksturojums un konstruktīvā shēma | 4 |
| 1.2 | Ēkas būvniecības vietas, konstruktīvo risinājumu un ekspluatācijas režīma dati | 5 |
| 1.3 | Ēkas karkasa nodotā slodze uz pamatu augšmalu, slodžu raksturojošās vērtības | 5 |
| 1.4 | Būvniecības topogrāfiskie un inženierģeoloģiskie apstākļi | 6 |
| 1.5 | Pamatnes grunšu ģeotehnisko parametru raksturojošās vērtības | 7 |
| 2. | Seklas iestrādes pamata aprēķins (zem malējās rindas kolonnas) | 8 |
| 2.1 | Izejas datu apstrāde saskaņā ar LVS EN 1997-1, DA2 | 8 |
| 2.1.1. | Grunts sezonālā caursalšanas dziļuma aprēķins pēc LBN 207-01.(2.5.p | 8 |
| 2.1.2. | Pamata iebūves dziļuma noteikšana, ievērojot sezonālo caursalšanas dziļumu, vājo grunts slāņu novietojumu un gruntsūdens līmeni | 9 |
| 2.2 | Pamata nestspējas aprēķins pēc LVS EN 1997-1 (D pielikums | 12 |
| 2.2.1. | Pamata horizontālās nestspējas aprēķins | 13 |
| 2.3 | Pamata sēšanās aprēķins zem malējās rindas kolonnas (bez blakus pamatu ietekmes) LBN 207-15.1 pielikums | 13 |
| 2.3.1. | Pieļaujamo spriegumu aprēķins pamatnes deformāciju noteikšanā LBN 207-01,58p., 7.form | 14 |
| 2.3.2. | Spriegumu aprēķins no grunts slāņu pašsvara BN 207-15,1.pielikuma, 18., 21.p | 14 |
| 2.3.3. | Spriegumu aprēķins no pieliktajām vertikālajām raksturīgajām slodzēm 1.pielikuma, 18.p. | 16 |
| 2.3.4. | Vājas nestspējas grunts slāņa pretestības aprēķins | 20 |
| 2.3.5. | Pamata sēšanās aprēķins. LBN 207-15. 1.pielikums, 22.p. | 21 |
| 2.4. | Seklo pamatu optimālo izmēru galīgā izvēle | 23 |
| 3. | Pāļu pamatu projektēšana | 24 |
| 3.1 | Režģoga pēdas novietojuma dziļuma un pāļu iedzīšanas dziļuma pamatojums | 24 |
| 3.2 | Režģoga un pāļu izmēru izvēle | 24 |
| 3.2.1. | Pāļu pamatu skice zem vidējās rindas kolonnas ar slodžu shēmu | 25 |
| 3.2.2. | Pāļu šķērsgriezuma izmēru, garuma, režģoga pāļu pašsvara noteikšana. | 25 |
| 3.3 | Pāļu pamata nestspējas aprēķins. LVS EN 1997-2, pielikums D.7 | 26 |
| 3.3.1. | Raksturīgo un aprēķina slodžu kopsavilkums uz pāļu pamatu | 28 |
| 3.3.2. | Pāļu nestspējas noteikšanas shēma | 30 |
| 3.4 | Pāļu pamata sēšanās aprēķins. LBN 214 – 03 | 31 |
| 3.4.1. | Pāļu pamatu un pamatnes deformācijas aprēķins | 31 |
| 3.4.2. | Vidējā spiediena noteikšana nosacītā pamatu pēdas līmenī | 31 |
| 3.4.3. | Pieļaujamo spriegumu aprēķins no raksturīgajām vertikālajām slodzēm | 32 |
| 3.4.4. | Sprieguma aprēķins no grunts slāņu pašsvara | 33 |
| 3.4.5. | Sprieguma aprēķins no pieliktajām vertikālajām raksturīgajām slodzēm | 33 |
| 4. 4. | Grafiskā daļa | 37 |
| 4.1 | Seklo un pāļu pamatu plāni M 1:200 | 37 |
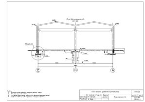
| 4.2 | Ēkas šķērsgriezums ar pamatu konstrukciju variantiem un slodžu shēmu uz tiem M 1:100 | 37 |
| 4.3 | Seklo pamatu mezgls plānā un griezumā M 1:20 | 37 |
| 4.4 | Pamata mezgls pie ārējām asīm ar pieguļošajiem sienu elementiem plānā un griezumā M 1:20 | 37 |
| 4.5 | Pāļu pamatu mezgls plānā un griezumā M 1:30 | 37 |
| 4.6 | Būvlaukuma ģeoloģiskās uzbūves shēma ar ēkas pamatu vertikālo piesaisti | 37 |
2. SEKLAS IESTRĀDES PAMATA APRĒĶINS (ZEM
MALĒJĀS RINDAS KOLONNAS)
2.1 Izejas datu apstrāde saskaņā ar LVS EN 1997-1, DA2
2.1.1. Grunts sezonālā caursalšanas dziļuma aprēķins pēc LBN 207-01.(2.5.p.)
Ja nav pieejami novērojumi, kas veikti vismaz 10 gadu, pamatnes grunts sezonas
caursalšanas normatīvo dziļumu dfn (metros) nosaka ar siltumtehniskajiem aprēķiniem vai nosaka
pamatu iebūves dziļumu saskaņā ar LBN 207-1 punktu 2.5:
dfn = d0 ∙ √Mt
Mt = 16,8
do - dziļums (m):
Mālsmiltij un mālam - 0,23;
Smilšmālam, putekļainai un smalkai smiltij – 0,28;
Grantainai, rupjai un vidēji rupjai smiltij – 0,30;
Rupjdrupu gruntij – 0,34.
Vidējo caursalšanas dziļumu pieņem robežās no 1.2 -1.5 m. Pieņemu 1.2 m.
Neviendabīgai gruntij dziļums do ir vidēji svērtais caursalšanas dziļuma biezumā:
d0 =
d0,1 ∙ l1 + d0,2 ∙ l2
l1 + l2
=
0.3 ∙ 1.2
1.2
= 0.30 m
dfn = 0.30 ∙ √16.8 = 1.23 m
df = kh ∙ dfn
kh – koeficients, kas atkarīgs no būves siltumtehniskā režīma. Neapkurināmu būvju iekšējiem un
ārējiem pamatiem kh = 1,1, apkurināmu būvju pamatiem kh nosaka, izmantojot šī būvnormatīva
6.pielikuma 1.tabulu.…
Uzdevums: Aprēķināt seklos un pāļu pamatus vienstāva divlaidumu ražošanas ēkai ar pilnu dzelzsbetona karkasu (bez pagraba). Ja nav pieejami novērojumi, kas veikti vismaz 10 gadu, pamatnes grunts sezonas caursalšanas normatīvo dziļumu dfn (metros) nosaka ar siltumtehniskajiem aprēķiniem vai nosaka pamatu iebūves dziļumu saskaņā ar LBN 207-1 punktu 2.5: d_fn=d_0∙√(M_t )
Materiāls ir PDF formātā.
- Ēku inženiersistēmu apsekošanas un pārbaudes darbs
- Laboratorijas darbs. Drošinātāji un aizsargslēdži
- Studiju darbs priekšmetā “Ģeotehnikas pamatkurss” Pamatu un pamatņu projektēšana
-
Tu vari jebkuru darbu ātri pievienot savu vēlmju sarakstam. Forši!Laboratorijas darbs. Drošinātāji un aizsargslēdži
Paraugs augstskolai8
-
Ēku inženiersistēmu apsekošanas un pārbaudes darbs
Paraugs augstskolai18
-
Studiju darbs - vispārīgā metroloģija
Paraugs augstskolai9
-
Studiju darbs elektrotehnikā un elektronikā
Paraugs augstskolai15
-
Būvmehānika. Aprēķinu darbs
Paraugs augstskolai15

