-
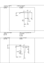
Statiski nenoteicams rāmis (Galīgo elementu metode)
Paraugs13
Darbu komplekts:
IZDEVĪGI pirkt komplektā ➞ ietaupīsi −7,27 €
- Ienākumu modelēšana
-
Statiski nenoteicams rāmis (Galīgo elementu metode)
Paraugs13
- Uzņēmuma līgums par pārtikas kiosku celtniecību
Materiālu komplekts Nr. 1343574


