-
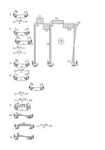
Statiski nenoteicama rāmja aprēķins ar spēku metodi
Darbu komplekts:
IZDEVĪGI pirkt komplektā ➞ ietaupīsi −9,77 €
- Statiski nenoteicama rāmja aprēķins ar pārvietojumu metodi
-
Statiski nenoteicama rāmja aprēķins ar spēka metodi
Paraugs14
- Statiski nenoteicama rāmja aprēķins ar spēku metodi
Materiālu komplekts Nr. 1250642


