-
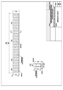
Saliekama dzelzsbetona pārseguma elementu aprēķins
Paraugs10
Darbu komplekts:
IZDEVĪGI pirkt komplektā ➞ ietaupīsi −8,70 €
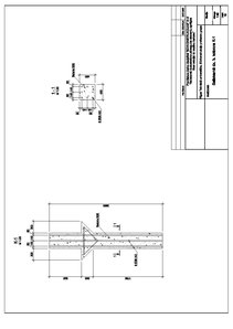
- Kopnes aprēķins
-
Mājas darbs būvkonstrukciju automatizētajā projektēšanā
Paraugs23
-
Saliekama dzelzsbetona pārseguma elementu aprēķins
Paraugs10
Materiālu komplekts Nr. 1115095


