Pievienot darbus Atzīmētie0
Darbs ir veiksmīgi atzīmēts!

Atzīmētie darbi

Skatītie0

Skatītie darbi

Grozs0
Darbs ir sekmīgi pievienots grozam!

Grozs

Reģistrēties

interneta bibliotēka
Atlants.lv bibliotēka
Akcijas un īpašie piedāvājumi 2 Atvērt
14,20 € Ielikt grozā
Gribi lētāk?
Identifikators:676401
 
Autors:
Vērtējums:
Publicēts: 28.02.2023.
Valoda: Latviešu
Līmenis: Augstskolas
Literatūras saraksts: Nav
Atsauces: Nav
Darba fragmentsAizvērt

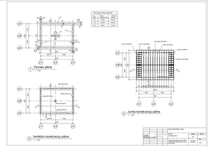
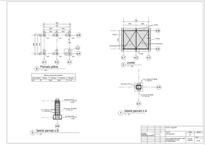
1. Skaidrojošais apraksts
Esošā situācija
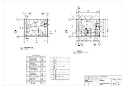
Zemes vienība atrodas Melderu iela, Mārupes novada, kopēja platībā 1,75ha.
Zemes vienības reljefs raksturojams, kā kalnains. Augstāka augstuma atzīmē ir
+26,49m. Teritorijā nav esošas apbūves. Piekļuve zemes vienībai pa Melderu ielu.
Projekta priekšlikums
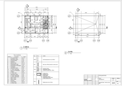
Projekta priekšlikums ir divstāvu dzīvojamā māja ar vienu pazemes stāvu,
kopā ar saimniecības ēku un auto nojumi. Arhitektūras apjoma risinājumi tiek veidoti,
ierotējot ēkas atrašanās vietu un apkārtējo vidi.
Teritorijas labiekārtojums un satiksmes organziācija
Pirms darbu veikšanas jāizstrādā “Darbu veikšanas projekts”, kurā tiek
precizēts pagaidu būvju, būvniecības materiālu novietņu un pagaidu nožogojuma
novietojums. Galvenie etapi kopējā darbu kompleksā.
- Sagatavošanās darbi;
- Būvniecības darbi nulles ciklā;
- Ēkas pazemes konstrukcijas izbūve;
- Ēkas virszemes konstrukcijas izbūve;
- Ēkas ārējie un iekšējie apdares darbi;
- Teritorijas labiekārtošanas darbi.
Darbi veicami saskaņā ar akceptēto būvprojektu.
Apjomu risinājums un plānojums
Zemesgabala kopējā plātība 1753m2,
Apbūves laukums 214.7m2,
Bruģis/Dolomīta šķembas iebrauktuve 192m2,
Brīvā teritorija 76,8%,
Apbūves blīvums 12,3%.
Arhitektūras un Konstruktīvie risinājumi…

Autora komentārsAtvērt
Redakcijas piezīmeAtvērt
Parādīt vairāk līdzīgos ...

Atlants

Izvēlies autorizēšanās veidu

E-pasts + parole

E-pasts + parole

Norādīta nepareiza e-pasta adrese vai parole!
Ienākt

Aizmirsi paroli?

Draugiem.pase
Facebook

Neesi reģistrējies?

Reģistrējies un saņem bez maksas!

Lai saņemtu bezmaksas darbus no Atlants.lv, ir nepieciešams reģistrēties. Tas ir vienkārši un aizņems vien dažas sekundes.

Ja Tu jau esi reģistrējies, vari vienkārši un varēsi saņemt bezmaksas darbus.

Atcelt Reģistrēties