-
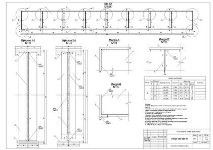
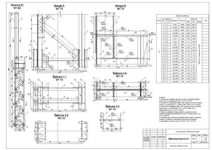
Vienstāva ražošanas ēka ar vienlaiduma nesošo šķērsrāmi
Darbu komplekts:
IZDEVĪGI pirkt komplektā ➞ ietaupīsi −-1,80 €
- Koka ēkas fasādes un jumta remontdarbu tāme
- Sijas šķēluma (šķērsgriezuma) noteikšana
- Vienstāva ražošanas ēka ar vienlaiduma nesošo šķērsrāmi
Materiālu komplekts Nr. 1128032


