Pievienot darbus Atzīmētie0
Darbs ir veiksmīgi atzīmēts!

Atzīmētie darbi

Skatītie0

Skatītie darbi

Grozs0
Darbs ir sekmīgi pievienots grozam!

Grozs

Reģistrēties

interneta bibliotēka
Atlants.lv bibliotēka
Akcijas un īpašie piedāvājumi 2 Atvērt
11,49 € Ielikt grozā
Gribi lētāk?
Identifikators:887093
 
Autors:
Vērtējums:
Publicēts: 20.09.2021.
Valoda: Latviešu
Līmenis: Augstskolas
Literatūras saraksts: Nav
Atsauces: Nav
Laikposms: 2011. - 2020. g.
2021. - 2025. g.
Darba fragmentsAizvērt

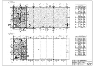
Ugunsdrošības risinājumi:
Ģenerālplāna ugunsdrošības risinājumi un ēkas izvietojums:
Saskaņa ar LBN prasībām “Būvju ugunsdrošība” ģenerālplāna ir nodrošināta ar ugunsdzēsības dīķi,
piebraucamajiem ceļiem speciālam transportam, ūdensapgādei ugunsgrēka gadījumā, ugunsdrošības
attālumi un vieta speciālajam transportam.
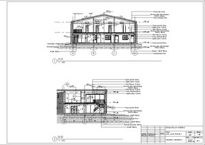
Ugunsnoturības pakāpe: U2b
Būvkonstrukciju ugunsizturība – Nesošās sienas un kāpņu telpu sienas, Pārsegumi, tai skaitā
erkeros – REI30, Kolonnas – R30**, Kāpņu laukumi, sijas, laidi un pakāpieni evakuācijas ceļā,
Kāpņu telpas horizontāla norobežojošā konstrukcija, Savietotais jumts*** – R30, Jumta nesošās
būvkonstrukcijas – R15, Durvis, logi, vārti, lūkas un vārsti ugunsdrošās sienās un ugunsdrošības
nodalījuma norobežojošās konstrukcijās****, Ailu aizpildījums ugunsdroši atdalītas telpas
norobežojošās konstrukcijās***** -EI30.
Būvkonstrukciju ugunsreakcijas klase - Kāpņu telpu sienas – A1, Nesošās sienas un karkasa
kolonnas - B-s2,d0, Ārējās sienas, Jumta nesošā būvkonstrukcija – netiek normēta, Starpstāvu
pārsegumi un savietotais jumts - B-s2,d0***, Kāpņu laukumi, sijas, laidi un pakāpieni evakuācijas
ceļā - A2-s1,d0.
Būves iekšējo būvizstrādājumu virsmu apdares ugunsreakcijas klases- Ugunsaizsargātās un
dūmaizsargātās kāpņu telpās, aizsargātos evakuācijas ceļos un ugunsdrošās priekštelpās sienu un
griestu apdares būvizstrādājumu ugunsreakcijas klase ir vismaz A2-s1, d0 un grīdu būvizstrādājumu
ugunsreakcijas klase ir vismaz BFL. Vestibilos, ātrijos, hallēs un foajē sienu un griestu
būvizstrādājumu ugunsreakcijas klase ir vismaz Bs1, d0 un grīdu būvizstrādājumu ugunsreakcijas
klase ir vismaz DFL.…

Autora komentārsAtvērt
Parādīt vairāk līdzīgos ...

Atlants

Izvēlies autorizēšanās veidu

E-pasts + parole

E-pasts + parole

Norādīta nepareiza e-pasta adrese vai parole!
Ienākt

Aizmirsi paroli?

Draugiem.pase
Facebook

Neesi reģistrējies?

Reģistrējies un saņem bez maksas!

Lai saņemtu bezmaksas darbus no Atlants.lv, ir nepieciešams reģistrēties. Tas ir vienkārši un aizņems vien dažas sekundes.

Ja Tu jau esi reģistrējies, vari vienkārši un varēsi saņemt bezmaksas darbus.

Atcelt Reģistrēties