Pievienot darbus Atzīmētie0
Darbs ir veiksmīgi atzīmēts!

Atzīmētie darbi

Skatītie0

Skatītie darbi

Grozs0
Darbs ir sekmīgi pievienots grozam!

Grozs

Reģistrēties

interneta bibliotēka
Atlants.lv bibliotēka
Akcijas un īpašie piedāvājumi 2 Atvērt
4,49 € Ielikt grozā
Gribi lētāk?
Identifikators:231036
 
Autors:
Vērtējums:
Publicēts: 28.11.2009.
Valoda: Latviešu
Līmenis: Augstskolas
Literatūras saraksts: Nav
Atsauces: Nav
Darba fragmentsAizvērt

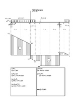
Darbu sāku ar balsta reakciju noteikšanu. Iegūtos balsta reakciju lielumus pārbaudīju, lai nerastos kļūdas. No tās secināju, ka aprēķini veikti pareizi.
Tālāk veicu aprēķinus, lau varētu uzzīmēt škērsspēku un momentepīras un atrast max Q un max M.Ieguvu, ka pie pieliktajām slodzēm max Q ir 17,2kN, bet max M ir 20,4 kNm. Šie lielumi jāizmanto, lai aprēķinātu W+ un W- (teorētiski pieļaujamos). Aprēķinot ieguvu W+=2040cm3, bet W-=1700cm3.Pretestības momenti konkrētajam šķērsgriezumam sanāca daudz lielāki par pieļaujamiem W+7371.79cm3 ,bet W-=7136.89cm3.No tā secinu, ka sija iztur ar krietnu rezervi, to droši varētu noslogot vēl vairāk.
Arī metāla sija iztur, jo W+>136cm3 (teorētiski) W+=2043,3cm3 (stiepē no šķērsgriezuma) un W->136cm3 (teorētiski) W-=1836,4cm3 (spiedē).
Koka sijai tika veikta pārbaude līmei uz bīdes spriegumiem. Pēc veiktajiem aprēķiniem secinu, ka līme iztur bīdes spriegumus. Aprēķinu gaitā iegūtie rezultāti parādīja, ka līmei pieliktie spriegumi ir 0.13 MPa, bet tā iztur 2.5 MPa.)…

Autora komentārsAtvērt
Parādīt vairāk līdzīgos ...

Atlants

Izvēlies autorizēšanās veidu

E-pasts + parole

E-pasts + parole

Norādīta nepareiza e-pasta adrese vai parole!
Ienākt

Aizmirsi paroli?

Draugiem.pase
Facebook

Neesi reģistrējies?

Reģistrējies un saņem bez maksas!

Lai saņemtu bezmaksas darbus no Atlants.lv, ir nepieciešams reģistrēties. Tas ir vienkārši un aizņems vien dažas sekundes.

Ja Tu jau esi reģistrējies, vari vienkārši un varēsi saņemt bezmaksas darbus.

Atcelt Reģistrēties