Diplomdarbs
Tehnoloģijas
Celtniecība un būvdarbi
Daudzdzīvokļu dzīvojamas mājas elektroapgāde-
Daudzdzīvokļu dzīvojamas mājas elektroapgāde
TOP 500
| Nr. | Sadaļas nosaukums | Lpp. |
| Ievads | 8 | |
| 1. | Telpu iedalījums | 9 |
| 2. | Iekšējo elektroapgādes tīklu elektroiekārtas | 10 |
| 2.1. | Elektroinstalācijas piederumi un materiāli | 10 |
| 2.2. | Zemsprieguma elektriskie aparāti | 12 |
| 2.2.1. | Drošinātāji | 12 |
| 2.2.2. | Automātslēdži | 13 |
| 2.3. | Elektroiekārtu aizsardzība no apkārtējās vides | 15 |
| 3. | Apgaismojums | 16 |
| 3.1. | Apgaismojuma prasības | 16 |
| 3.2. | Gaismas avoti | 18 |
| 4. | Spēka tīkla aprēķins | 19 |
| 4.1. | Objekta specifika un tekošā situācija | 19 |
| 4.2. | Kabeļu izvēle | 20 |
| 5. | Apgaismes tīkla aprēķins | 28 |
| 5.1. | Tekošā situācija | 28 |
| 5.2. | Kabeļu izvēle | 28 |
| 6. | Īsslēguma strāvu aprēķins | 35 |
| 6.1. | Trīsfāžu īsslēguma strāvu aprēķins | 36 |
| 6.2. | Vienfāžu īsslēguma strāvu aprēķins | 39 |
| 7. | Aizsardzības aparātu izvēle | 45 |
| 7.1. | Automātslēdžu izvēle | 45 |
| 7.2. | Drošinātāju izvēle | 48 |
| 8. | Darba aizsardzība | 56 |
| 8.1. | Drošības prasības, veicot darbus zemsprieguma elektroietaisēs | 56 |
| 8.2. | Pirmās palīdzības sniegšana elektrotraumu gadījumā | 58 |
| 9. | Elektromontāžas darbu un materiālu tāme | 60 |
| Secinājumi | 64 | |
| Literatūras saraksts | 65 | |
| Pielikumi | 66 | |
| Grafiskā daļa | 67 | |
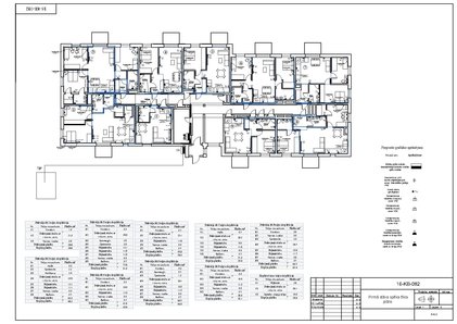
| 1. Pielikums. Pirmā stāva spēka tīkla plāns | 68 | |
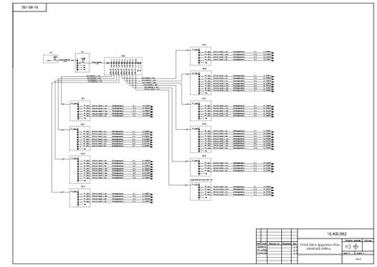
| 2. Pielikums. Pirmā stāva spēka tīkla aprēķina shēma | 69 | |
| 3. Pielikums. Pirmā stāva spēka tīkla elektriskā shēma | 70 | |
| 4. Pielikums. Pirmā stāva apgaismes tīkla plāns | 71 | |
| 5. Pielikums. Pirmā stāva apgaismes tīkla aprēķina shēma | 72 | |
| 6. Pielikums. Pirmā stāva apgaismes tīkla elektriskā shēma | 73 | |
| 7. Pielikums. Apgaismojuma aprēķina piemērs Dialux 4 datorprogrammā | 74 |
Elektrība is vissvarīgakais enerģijas avots. Ikdienišķā dzīvē elektrība pavada mūs visu dienu. Katrs otrais cilvēks iedarbīna televizoru, datoru, bet ledusskapim ir nepieciešama elektrība pastāvīgi. Neviena māja nevarēs apieties bez elektroenerģijas.
Ikvienā objektā – dzīvojamā ēkā, birojā, klientu apkalpošanas centrā un citā sabiedriskā, kā arī rūpnieciskā ēkā ir nepieciešamība pēc elektroapgādes un elektroinstalācijas ierīkošanas.
Dzīvokļa elektromontāža jaunbūvē iesākas no projekta. Projektam ir jāsatur pārvaldes shēmai, apgaismojuma un spēka tīkla apreķiniem, rozešu skaitu, slēdžu un to daudzums.
Darbā apskatāmais objekts ir daudzdzīvokļu vienstāvu māja, Zasaulauka iela 13, Rīga. Stāva kopēja platība sastāda 523,7 m2 , no kurienes 467,5m2 ir dzīvojāma platība.
Elektriskā strāva nav redzama, tāpēc cilvēka maņu orgāni nevar just draudošās briesmas. Līdz ar to ir jāpadoma par aizsardzības aparatiem un par drošumu kopā. Elektroapgādes galvenas prasības ir kvalitāte, drošums, uzticamība, ekspluatācijas ertība, ekonomiskums un tālāka attīstība, modernizācija.…
RTK. Diplomdarbs, Kvalifikācijas darbs. Elektroapgāde. Elektriskās iekārtas. Daudzdzīvokļu dzīvojamas mājas elektroapgāde.
Materiāls satur Word, Excel un 3 PDF formāta failus.
- Daudzdzīvokļu dzīvojamas mājas elektroapgāde
- Mājas siltināšanā izmantojamie materiāli
- Pasīvās mājas
-
Tu vari jebkuru darbu ātri pievienot savu vēlmju sarakstam. Forši!Rūpniecības preču veikala un administratīvās ēkas projekts Rīgā, Tīnūžu ielā b/n
Diplomdarbs augstskolai94
-
Ģimenes mājas apsildes vadības sistēmas struktūra
Diplomdarbs augstskolai40
-
Viesu nams Rēzeknē
Diplomdarbs augstskolai70
-
Darba aizsardzība būvniecībā
Diplomdarbs augstskolai100
-
Bārbeles ciemata elektroapgādes rekonstrukcijas projekts
Diplomdarbs augstskolai49

