Diplomdarbs
Tehnoloģijas
Celtniecība un būvdarbi
CO2 izmešu salīdzinājums CLT un dzelzsbetona pārseguma un...-
CO2 izmešu salīdzinājums CLT un dzelzsbetona pārseguma un sienu paneļu ražošanai, transportēšanai un montāžai
TOP 500
| Nr. | Sadaļas nosaukums | Lpp. |
| I. | Pētnieciskā darba daļa | 11 |
| Ievads | 11 | |
| 1. | Vēsture | 13 |
| 1.1 | CLT attīstības vēsture | 13 |
| 1.2. | Betona attīstības vēsture | 14 |
| 1.3. | Dzelzsbetona attīstības vēsture | 16 |
| 2. | Ražošanas tehnoloģijas | 17 |
| 2.1 | CLT ražošanas tehnoloģija | 17 |
| 2.1.1. | Materiāla apraksts | 17 |
| 2.1.2. | CLT paneļu ražošana | 18 |
| 2.1.3. | Ražošanai izmantotās līmes un laminēšanas process | 21 |
| 2.1.4. | Paneļu griešana ar CNC iekārtu un tolerances | 21 |
| 2.2. | Saliekamā dzelzsbetona ražošanas tehnoloģija | 22 |
| 2.2.1. | Materiāla apraksts | 23 |
| 2.2.2. | Saliekamā dzelzsbetona ražošanas process | 24 |
| 3. | Transportēšanas tehnoloģijas | 28 |
| 3.1. | CLT transportēšanas tehnoloģija | 28 |
| 3.2. | Saliekamā dzelzsbetona transportēšanas tehnoloģija | 29 |
| 4. | Montāžas tehnoloģija | 31 |
| 4.1. | CLT paneļu montāžas tehnoloģija | 31 |
| 4.2. | Saliekamā dzelzsbetona montāžas tehnoloģija | 32 |
| 5. | CO2 ietekme uz apkārtējo vidi | 37 |
| 5.1. | Klimata pārmaiņas | 37 |
| 5.2. | Mežu globālā attīstība | 39 |
| 6. | Pētnieciskā daļa – CO2 izmešu daudzuma noteikšana | 42 |
| 6.1. | Ražošanas procesā radītais CO2 izmešu daudzums | 42 |
| 6.1.1. | CLT paneļu ražošanas procesā radītais CO2 daudzums | 44 |
| 6.1.2. | Saliekamā dzelzsbetona ražošanas procesā radītais CO2 daudzums | 44 |
| 6.2. | Transportēšanas procesā radītais CO2 izmešu daudzums | 46 |
| 6.3. | Montāžas procesā radītais CO2 izmešu daudzums | 48 |
| 6.4. | Darbā iegūto datu izvērtēšana | 49 |
| Secinājumi | 51 | |
| II. | Inženierprojekts | 53 |
| 7. | Projekta apraksts | 53 |
| 7.1. | Izejas dati | 53 |
| 7.2. | Objekta funkcionālā shēma | 53 |
| 7.3. | Grunts hidroģeoloģiskie dati | 54 |
| 7.4. | Inženierkomunikāciju tīklu (pievadu) izvietojums | 54 |
| 8. | Arhitektūra | 56 |
| 8.1. | Objekta tehniskais raksturojums | 56 |
| 8.2. | Ēkas tehniski ekonomiskie rādītāji | 56 |
| 8.3. | Arhitektūras risinājumi | 56 |
| 8.4. | Ēkas plānojumi | 57 |
| 8.5. | Ēkas fasādes | 57 |
| 8.6. | Vides pieejamība | 58 |
| 8.7. | Labiekārtošana | 58 |
| 8.8. | Apdare | 58 |
| 8.9. | Inženiertehniskie risinājumi | 59 |
| 8.10. | Ugunsdrošības risinājumi | 61 |
| 8.11. | Ārējo norobežojošo konstrukciju siltutehniskais aprēķins | 61 |
| 9. | Inženierprojekta būvkonstrukciju daļas aprēķini | 69 |
| 9.1. | Slodžu aprēķins | 69 |
| 9.2. | Materiālu stiprības raksturīgās īpašības | 80 |
| 9.3. | Slodžu kombinācijas | 81 |
| 9.4. | Jumta paneļa aprēķins | 81 |
| 9.5. | Vienkāršotais kopnes aprēķins | 90 |
| 9.6. | Kopnes aprēķins | 94 |
| 9.7. | Kolonnas aprēķins | 114 |
| 9.8. | Pāļu aprēķins | 123 |
| 9.9. | Kopnes mezglu aprēķins | 138 |
| 10. | Projekta izmaksas un kolonnu ekonomiskais salīdzinājums | 148 |
| 11. | Būvdarbu veikšanas procesu apraksts | 156 |
| 11.1. | Sagatavošanas darbi | 156 |
| 11.2. | Būvlaukuma norobežošana | 156 |
| 11.3. | Būvasu nospraušana | 157 |
| 11.4. | Būvmateriālu nokrautnes izveidošana | 157 |
| 11.5. | Zemes darbi | 158 |
| 11.6. | Būvbedre | 158 |
| 11.7. | Pamatne | 158 |
| 11.8. | Pāļi | 158 |
| 11.9. | Režģogu un monolīto dzelzsbetona sienu izbūves darbi | 159 |
| 11.10. | Saliekamo dzelzsbetona pārseguma paneļu montāža | 162 |
| 11.11. | Kāpņu laidu un kāpņu laukumu montāžas darbi | 164 |
| 11.12. | Jumta izbūves darbi | 165 |
| 11.13. | Siltumizolācijas darbi | 166 |
| 11.14. | Logu montāžas darbi | 167 |
| 11.15. | Durvju montāžas darbi | 167 |
| 11.16. | Estrich grīdu izbūve | 168 |
| 11.17. | Grīdas segumu ieklāšana | 168 |
| 11.18. | Nenesošo starpsienu izbūves darbi | 169 |
| 11.19. | Pagaidu elektroapgādes aprēķins | 171 |
| 11.20. | Pagaidu ūdens apgādes aprēķins | 171 |
| 11.21. | Būvmašīnu aprēķins | 173 |
| 12. | Darba drošība un aizsardzība | 176 |
| 12.1. | Ugunsdrošības pasākumi objektā | 176 |
| 12.2. | Higiēnas, labiekārtošanas prasības un vides aizsardzība | 176 |
| Bibliogrāfija | 178 |
Diplomdarbs sastāv no divām daļām – inženierprojekta un pētnieciskās daļas.
Pētnieciskās daļas galvenais mērķis ir izpētīt un veikt salīdzinošu analīzi diviem
būvniecības materiāliem – CLT un dzelzsbetonam, lai noteiktu radīto CO2 izmešu
daudzumu pilnā būvniecības ciklā. Ņemot vērā, ka būvniecības industrija rada lielu
CO2 izmešu daudzumu, temats ieņem nozīmīgu lomu būvniecības industrijā attiecībā
uz izmešu samazinājumu.
Darba gaitā tiek izvērsti aprakstīta CLT, betona un dzelzsbetona attīstības
vēsture, kā arī ražošanas, transportēšanas un montāžas tehnoloģijas. Tiek iepazīts
materiālu ražošanas process un procesu secība, kādā materiāli tiek ražoti, sākot ar
izejmateriālu sagādi, līdz transportēšanai uz būvobjektu. Veicot literatūras analīzi,
noteikts CLT un dzelzsbetona ražošanas, transportēšanas un montāžas procesos radīto
CO2 izmešu daudzums, pēc kuriem veikts radīto izmešu salīdzinājums, lai noskaidrotu
materiālu ieguvumus un trūkumus.
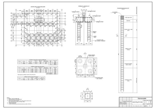
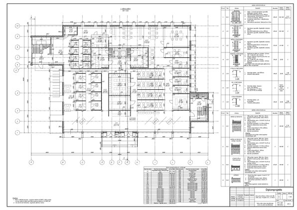
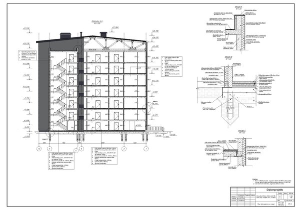
Inženierprojekta daļā tiek izstrādāta biroja ēka Zīlānos. Ēkas apjoms ir
līdzvērtīgs 3.kategorijas ēkas normatīvajos aktos noteiktajām prasībām. Ēkas kopējā
stāvu platība ir 7757.35 m2, apbūves laukums 1187.5m2. Biroja ēkai ir 7.stāvi, kur
1.stāva plānojums atšķiras no tipveida stāvu plānojumiem, ar izbūvētu uzgaidāmo telpu
jeb vestibilu. Tipveida stāvu plānojumi ir vienādi, lai palielinātu iespējamo darba vietu
skaitu.
Ēkas konstruktīvo shēmu veido monolītās dzelzsbetona sienas, dzelzsbetona
kolonnas ar piestiprinātām Peikko DeltaBeam sijām, uz kurām balstās dobie
dzelzsbetona pārseguma paneļi. Balkonu daļas tiek betonētas, veidojot monolītu
pārseguma elementu. Par ēkas pamatu risinājumu izvēlēts pāļu lauks un pāļu puduri, uz
kuriem balstās pamatu nesošā plātne.
Inženierprojekta aprakstošajā daļā tiek sniegta vispārīga informācija par ēkas
arhitektūru, inženiersistēmu risinājumiem, būvkonstrukciju aprēķiniem, kā arī
aprakstīta ēkas būvdarbu tehnoloģija, projekta izmaksas un ekonomiskais pamatojums
vienam no nesošo konstrukciju elementiem. Inženierprojekta konstruktīvie rasējumi
grafiski attēloti uz 11 A1 formāta rasējuma lapām.
Darbs satur 12 nodaļas, 180 lapaspuses, 94 attēlus, 31 tabulas. Darba izstrādei
izmantots 31 literatūras avots.…
Diplomdarbs sastāv no divām daļām – inženierprojekta un pētnieciskās daļas. Pētnieciskās daļas galvenais mērķis ir izpētīt un veikt salīdzinošu analīzi diviem būvniecības materiāliem – CLT un dzelzsbetonam, lai noteiktu radīto CO2 izmešu daudzumu pilnā būvniecības ciklā. Ņemot vērā, ka būvniecības industrija rada lielu CO2 izmešu daudzumu, temats ieņem nozīmīgu lomu būvniecības industrijā attiecībā uz izmešu samazinājumu. Darba gaitā tiek izvērsti aprakstīta CLT, betona un dzelzsbetona attīstības vēsture, kā arī ražošanas, transportēšanas un montāžas tehnoloģijas. Tiek iepazīts materiālu ražošanas process un procesu secība, kādā materiāli tiek ražoti, sākot ar izejmateriālu sagādi, līdz transportēšanai uz būvobjektu. Veicot literatūras analīzi, noteikts CLT un dzelzsbetona ražošanas, transportēšanas un montāžas procesos radīto CO2 izmešu daudzums, pēc kuriem veikts radīto izmešu salīdzinājums, lai noskaidrotu materiālu ieguvumus un trūkumus. Inženierprojekta daļā tiek izstrādāta biroja ēka Zīlānos. Ēkas apjoms ir līdzvērtīgs 3.kategorijas ēkas normatīvajos aktos noteiktajām prasībām. Ēkas kopējā stāvu platība ir 7757.35 m2, apbūves laukums 1187.5m2. Biroja ēkai ir 7.stāvi, kur 1.stāva plānojums atšķiras no tipveida stāvu plānojumiem, ar izbūvētu uzgaidāmo telpu jeb vestibilu. Tipveida stāvu plānojumi ir vienādi, lai palielinātu iespējamo darba vietu skaitu. Ēkas konstruktīvo shēmu veido monolītās dzelzsbetona sienas, dzelzsbetona kolonnas ar piestiprinātām Peikko DeltaBeam sijām, uz kurām balstās dobie dzelzsbetona pārseguma paneļi. Balkonu daļas tiek betonētas, veidojot monolītu pārseguma elementu. Par ēkas pamatu risinājumu izvēlēts pāļu lauks un pāļu puduri, uz kuriem balstās pamatu nesošā plātne. Inženierprojekta aprakstošajā daļā tiek sniegta vispārīga informācija par ēkas arhitektūru, inženiersistēmu risinājumiem, būvkonstrukciju aprēķiniem, kā arī aprakstīta ēkas būvdarbu tehnoloģija, projekta izmaksas un ekonomiskais pamatojums vienam no nesošo konstrukciju elementiem. Inženierprojekta konstruktīvie rasējumi grafiski attēloti uz 11 A1 formāta rasējuma lapām. Darbs satur 12 nodaļas, 180 lapaspuses, 94 attēlus, 31 tabulas. Darba izstrādei izmantots 31 literatūras avots.
Materiāls ir PDF formātā.
- Armatūras korozijas dzelzsbetona konstrukcijās
- CO2 izmešu salīdzinājums CLT un dzelzsbetona pārseguma un sienu paneļu ražošanai, transportēšanai un montāžai
- Dzelzsbetona konstrukcijas
-
Tu vari jebkuru darbu ātri pievienot savu vēlmju sarakstam. Forši!Kanalizācijas sistēmas attīstības problēmas Jelgavas pilsētā
Diplomdarbs augstskolai86
-
Rūpniecības preču veikala un administratīvās ēkas projekts Rīgā, Tīnūžu ielā b/n
Diplomdarbs augstskolai94
-
Dzīvojamo māju būvizmaksu un ekspluatācijas izdevumu analīze atkarībā no izvēlētiem būvmateriāliem
Diplomdarbs augstskolai45
-
Dzelzsbetona konstrukcijas
Diplomdarbs augstskolai18
-
Dzīvojamo ēku konstrukcijas
Diplomdarbs augstskolai39

