Pievienot darbus Atzīmētie0
Darbs ir veiksmīgi atzīmēts!

Atzīmētie darbi

Skatītie0

Skatītie darbi

Grozs0
Darbs ir sekmīgi pievienots grozam!

Grozs

Reģistrēties

interneta bibliotēka
Atlants.lv bibliotēka
Akcijas un īpašie piedāvājumi 2 Atvērt
6,49 € Ielikt grozā
Gribi lētāk?
Identifikators:387779
 
Autors:
Vērtējums:
Publicēts: 07.06.2011.
Valoda: Latviešu
Līmenis: Vidusskolas
Literatūras saraksts: 2 vienības
Atsauces: Nav
SatursAizvērt
Nr. Sadaļas nosaukums  Lpp.
  ANOTĀCIJA    2
  SATURS    3
  IEVADS    3
1.  AUTOSERVISA DARBĪBAS APRAKSTS   
2.  KONKURENTU ANALĪZE   
3.  AUTOSERVISA APRĒĶINS   
2.1.  Darba apjoma aprēķins   
2.2.  Atslēdznieku skaita aprēķins   
2.3.  Darba posteņu aprēķins   
2.4.  Stāvvietu aprēķins   
2.5.  Tehnisko apkopju darbu pamatojums   
2.6.  Tehnoloģiskās iekārtas   
3.  AUTOMOBIĻA TA UN TR ZONU TEHNOLOĢISKĀ PLĀNOŠANA   
4.  AUTOMOBIĻU STĀVVIETU APRĒĶINS   
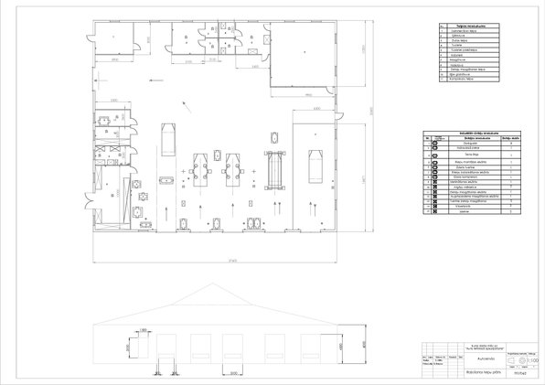
5.  UZŅĒMUMA ĢENERĀLAIS PLĀNS   
6.  UZŅĒMUMA TERITORIJAS APRĒĶINS   
  SECINĀJUMI   
Darba fragmentsAizvērt

Kopējā uzņēmuma teritorija – 1200 m2;
Apzaļumotā teritorija – 100 m2;
Asfaltētā teritorija – 350 m2;
Apbūves blīvums 70%.
Autoservisa ēka būs celta cementbetona plāksnēm, apbūvēta ar siltinātu un mitrumu necaurlaidošu materiālu, lai servisa telpās saglabātu arī ziemā + 15.. +17 grādus. Kā arī iekšsienām un ārsienām tiks veikti pasākumi, lai izolētu skaņu. Konstrukciju balsta kolonnas tiek nostiprinātas pie pamatnes ar metāla enkuriem vai ar tērauda enkuru skrūvēm. Klimatiskie apstākļi raksturīgi Latvijai. Būvniecībai paredzētas vietas reljefs ir līdzens.
Autoservisu apsildīs ar vietējo apsildes sistēmu, lai varētu ekonomēt līdzekļus uz kurināmā patēriņu. Ūdensvads un kanalizācija būs pilsētas.

SECINĀJUMI
Autoservisa projektēšana Jelgavas pilsētā ir perspektīva, jo Jelgavā ir daudz iedzīvotāju un pilsēta nav tālu no valsts centra, tas varētu būt izdevīgi strādājot un domājot par attīstību. Būvējot autoservisu ar mazu posteņu skaitu, servisa darbs tiek koncentrēts uz kvalitāti, nevis kvantitāti, lai nodrošinātu sev patstāvīgus klientus. Klientu skaita palielināšanu būtu iespējams panākt sniedzot kvalitatīvus un izdevīgus pakalpojumus. Izvēlētajā reģionā ir liels konkurentu skaits, kas apgrūtinātu gūt nepieciešamo peļņu, lai varētu segt jauna autoservisa būvniecību.

Autora komentārsAtvērt
Parādīt vairāk līdzīgos ...

Atlants

Izvēlies autorizēšanās veidu

E-pasts + parole

E-pasts + parole

Norādīta nepareiza e-pasta adrese vai parole!
Ienākt

Aizmirsi paroli?

Draugiem.pase
Facebook

Neesi reģistrējies?

Reģistrējies un saņem bez maksas!

Lai saņemtu bezmaksas darbus no Atlants.lv, ir nepieciešams reģistrēties. Tas ir vienkārši un aizņems vien dažas sekundes.

Ja Tu jau esi reģistrējies, vari vienkārši un varēsi saņemt bezmaksas darbus.

Atcelt Reģistrēties