-
Darba aizsardzības sistēmas izveidošana vidējam būvniecības uzņēmumam
-
Darba aizsardzības sistēmas izveidošana vidējam būvniecības uzņēmumam
AugstskolaDiplomdarbs87 -
Darba izmaksas un to uzskaite SIA "Tirgus" grāmatvedībā
AugstskolaDiplomdarbs50 -
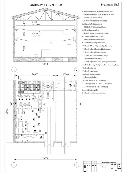
Dīzeļlokomotīvju dīzeļagregātu remonta ceha darba organizācija
AugstskolaDiplomdarbs48
Darba aizsardzības sistēmas izveidoša...
Faila izmērs:
3279 KB
Identifikators:
1324189


















































































































































































































